EasyManua.ls Logo

Videotec SM82A - Allarmi; Tipo DI Contatti DI Allarme

Videotec SM82A
174 pages
Print Icon
To Next Page IconTo Next Page
To Next Page IconTo Next Page
To Previous Page IconTo Previous Page
To Previous Page IconTo Previous Page
Loading...
Pag. 16 MNVCSM42A_1511_IT
4.2 Allarmi
La matrice prevede un connettore allarmi DB15, al quale possono essere applicati 4/8 (a seconda del
modello SM42A / SM82A) contatti di allarme ("ingressi di allarme"), uno per ciascuno degli ingressi video del
dispositivo video.
All’attivazione di un allarme:
le tastiere che consentono la visualizzazione della condizione di allarme possono attivare un buzzer di
avviso ed eventualmente mostrano con un messaggio a display o un led lampeggiante lo stato di allarme
(tale funzionamento è stabilito dalle caratteristiche e dalla configurazione della singola tastiera)
ciascuna uscita abilitata al riconoscimento mostra il segnale video corrispondente all’ultimo allarme
riconosciuto in ordine di tempo; se un’uscita non è abilitata al riconoscimento della condizione di allarme
questa non viene mostrata a video
viene chiuso il relè di allarme (contatto ausiliario) ed eventualmente è attivato un buzzer di avviso interno alla
matrice, se ciò è previsto dalla configurazione del contatto in allarme
al testo di identificazione dell’ingresso coorrispondente viene aggiunta la scritta “ALLARME”.
Uno stato di allarme viene memorizzato internamente e viene preservato anche in caso di interruzione
temporanea dell’alimentazione della matrice. Attenzione! La configurazione degli allarmi deve essere fatta con
particolare attenzione, in quanto un’errata impostazione degli stessi può portare ad anomalie di funzionamento
difficilmente identificabili.
4.2.1 Tipo di contatti di allarme
Ogni singolo contatto di allarme può essere definito:
normalmente aperto (N.O.): la condizione di allarme viene riconosciuta quando il contatto di allarme viene
cortocircuitato al comune allarmi
normalmente chiuso (N.C.): la condizione di allarme viene riconosciuta quando si interrompe il contatto tra il
contatto di allarme ed il comune allarmi
non usato: il contatto di allarme viene trascurato.
Attenzione! I pin che non vengono collegati ad alcun contatto di allarme devono essere configurati come NON
USATI.
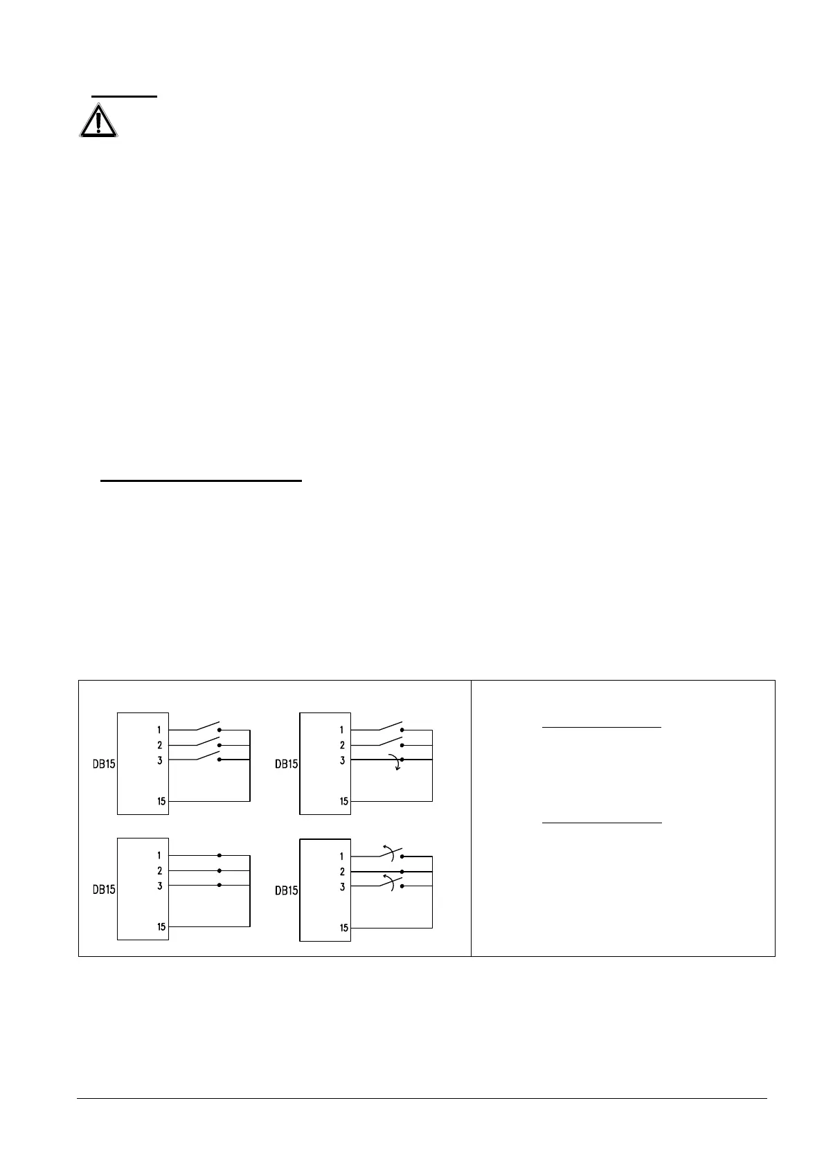
Si faccia riferimento all'esempio seguente per comprendere il funzionamento dei contatti di allarme:
Allarmi normalmente aperti
: i contatti sono
scollegati dal comune allarmi. Alla chiusura
del contatto è attivato il riconoscimento
dell'allarme numero 3.
Allarmi normalmente chiusi
: i contatti sono
collegati al comune allarmi (pin 9).
All'apertura del collegamento è attivato il
riconoscimento degli allarmi numero 1 e 3.
Questa configurazione permette di
riconoscere come stato d'allarme anche
l'eventuale interruzione del cavo di
collegamento tra il sensore e la matrice.

Table of Contents