EasyManua.ls Logo

Videotec SM82A - Page 88

Videotec SM82A
174 pages
Print Icon
To Next Page IconTo Next Page
To Next Page IconTo Next Page
To Previous Page IconTo Previous Page
To Previous Page IconTo Previous Page
Loading...
Page 16 MNVCSM42A_1511_FR
4.2 Alarmes
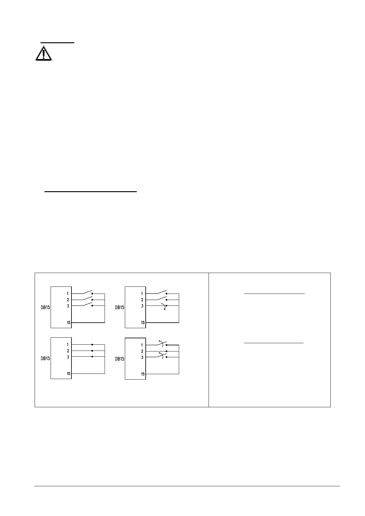
La matrice est équipée d’une prise DB15 auquel peuvent être raccordés (en fonction du modèle SM42A /
SM82A) 4/8 contacts d'alarme ("entrée d'alarme"), un pour chaque entrée vidéo du dispositif vidéo.
Lors de l'activation d'une alarme:
les pupitres permettant l'affichage de la condition d'alarme peuvent activer une sirène d'avertissement et
éventuellement afficher un message ou faire clignoter un led signalant l’information d'alarme (ce
fonctionnement dépend des caractéristiques et de la programmation de chaque pupitre)
chaque sortie programmée affiche l’image vidéo correspondante à la dernière alarme; toute sortie non
programmée à la reconnaissance de la condition d’alarme, ne sera pas affichée sur l’écran.
le relais d'alarme est fermé (contact auxiliaire) et une sirène d'avertissement à l'intérieur de la matrice est
éventuellement activée, si la programmation du contact en alarme le prévoit.
le texte d'identification de l'entrée correspondante s'accompagne du message “ALARME”.
Tout état d'alarme est mémorisé au niveau interne et préservé, y compris en cas d'interruption temporaire de
l'alimentation de la matrice. Attention! La configuration des alarmes doit être effectuée avec une attention
particulière, une mauvaise programmation peut entraîner des anomalies de fonctionnement difficilement
identifiables.
4.2.1 Type de contacts d'alarme
Chaque contact d'alarme peut être défini comme suit:
normalement ouvert (N.O.): la condition d'alarme est reconnue quand le contact d'alarme se ferme.
normalement fermé (N.F.): la condition d'alarme est reconnue quand le contact d'alarme s’ouvre.
non utilisé: le contact d'alarme est négligé.
Attention! Les broches n'étant raccordées à aucun contact d'alarme doivent être configurées comme NON
UTILISÉES.
Se reporter à l'exemple suivant pour comprendre le fonctionnement des contacts d'alarme:
Alarmes normalement ouvertes
: les
contacts sont déconnectés de l'alarme
commune. La fermeture du contact
entraîne l'activation de la
reconnaissance de l'alarme n.3.
Alarmes normalement fermées
: les
contacts sont connectés à l'alarme
commune (broche 9). L'ouverture de la
connexion entraîne la reconnaissance
des alarmes 1 et 3. Cette configuration
permet de reconnaître comme état
d'alarme la coupure du câble de
connexion entre le capteur et la
matrice.

Table of Contents