EasyManua.ls Logo

Viessmann VITOCONNECT 100 - Installation and Commissioning Sequence; Overall Process Overview

Viessmann VITOCONNECT 100
24 pages
Print Icon
To Next Page IconTo Next Page
To Next Page IconTo Next Page
To Previous Page IconTo Previous Page
To Previous Page IconTo Previous Page
Loading...
10
Sequence Responsibility Page
Installation
1 Check system requirements. Heating contractor/IT expert 7
2 Fit wall mounting bracket for Vitoconnect 100. Heating contractor 11
3 Connect the Vitoconnect 100 to the heat generator. Heating contractor 12
4 Insert the Vitoconnect 100 into the wall mounting
bracket.
Heating contractor 11
5 Establish power supply. Heating contractor 12
Commissioning
6 Check network settings. IT expert 14
7 Register user and set up heating system. Heating contractor/system user 14
Operation with ViCare app
Operation with Vitotrol Plus App
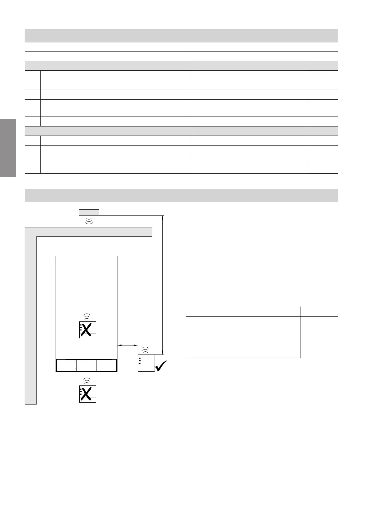
Installation location
A
>0.3 m
Fig. 2 Sample illustration with wall mounted appli-
ance
A
To ensure a good WLAN connection, keep the dis-
tance between the Vitoconnect 100 and the WLAN
router as short as possible.
Installation type: Wall mounting
Distance to heat generator minimum 0.3 m
Standard socket 230 V/50 Hz, max. 1 m next to
installation location
Internet access with adequate WLAN signal
Note
The WLAN signal strength can be increased with
commercially available WLAN repeaters.
Note
When selecting the installation site, bear in mind the
length of the connecting cables (standard delivery).
Connecting cables/leads Length
Connecting lead Optolink/USB for con-
necting the Vitoconnect 100 to the boiler
control unit
3 m
Plug-in power supply unit with connect-
ing cable
1 m
Installation sequence
Sequence overview
5785 665 GB
Installation

Other manuals for Viessmann VITOCONNECT 100

Related product manuals