EasyManua.ls Logo

Viessmann VR1 22 - Minimum Clearances to Combustibles; Recommended Minimum Clearances for Service

Viessmann VR1 22
52 pages
Print Icon
To Next Page IconTo Next Page
To Next Page IconTo Next Page
To Previous Page IconTo Previous Page
To Previous Page IconTo Previous Page
Loading...
Vitorond 100, VR1 22 to 33, 91 to 140 Installation and Service
5583 571 - 05
12
Set-up
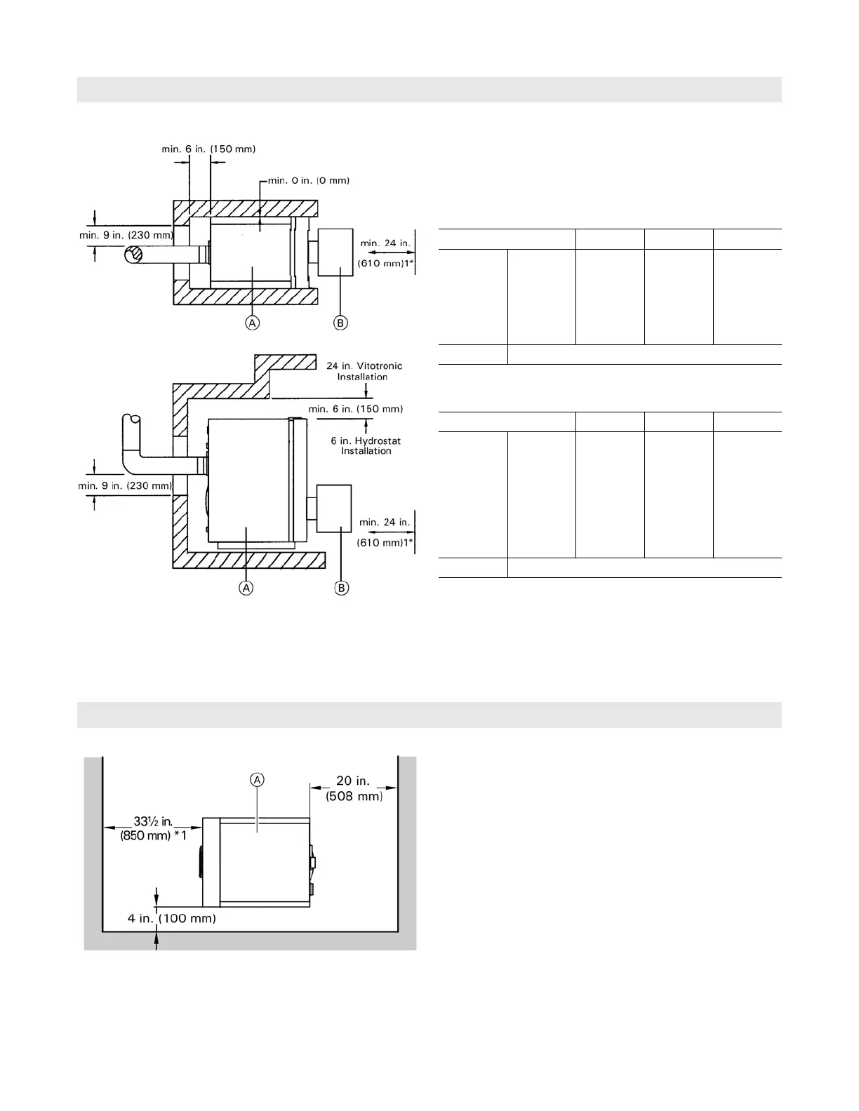
Minimum Clearances to Combustibles
Legend
A Boiler
B Burner
For typical installations, Viessmann recommends installing
the boiler with clearances as shown in Recommended
Minimum Clearances for Service.
The following are clearances to combustibles:
Standard installation
Boiler model VR1 22, 91 27, 105 33, 140
Rear
Sides
Flue
in.
(mm)
in.
(mm)
in.
(mm)
6
(150)
0
0
9
(230)
6
(150)
0
0
9
(230)
6
(150)
0
0
9
(230)
Floor Combustibles
Boiler model VR1 22, 91 27, 105 33, 140
Rear
Sides
Flue
Top
in.
(mm)
in.
(mm)
in.
(mm)
in.
(mm)
6
(150)
0
0
9
(230)
6
(150)
6
(150)
0
0
9
(230)
6
(150)
6
(150)
0
0
9
(230)
6
(150)
Floor Combustibles
Alcove installation
*1 Clearance of 24” (610 mm) required . for burner service.
Recommended Minimum Clearances for Service
Legend
A Boiler
*1 Minimum access for cleaning and service.

Table of Contents

Related product manuals