EasyManua.ls Logo

Viessmann VR1 22 - Installation Examples - Vitotronic

Viessmann VR1 22
52 pages
Print Icon
To Next Page IconTo Next Page
To Next Page IconTo Next Page
To Previous Page IconTo Previous Page
To Previous Page IconTo Previous Page
Loading...
Vitorond 100, VR1 22 to 33, 91 to 140 Installation and Service
5583 571 - 05
42
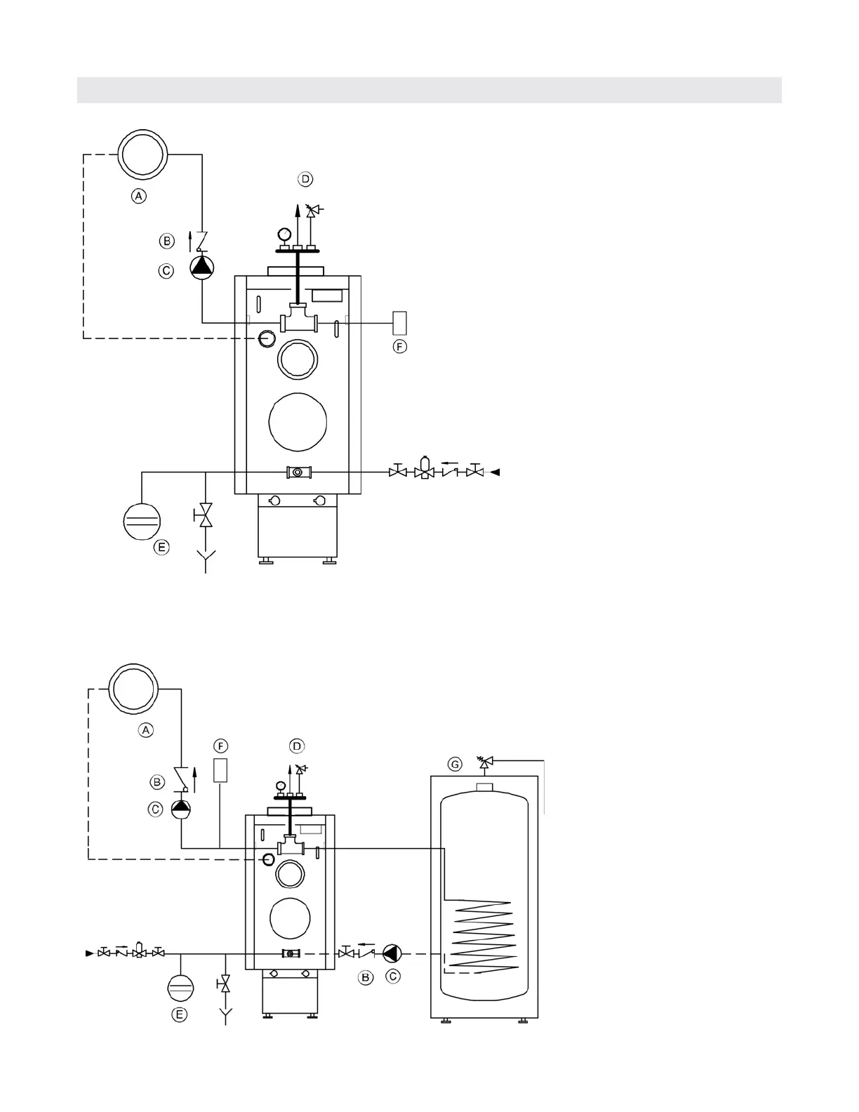
Installation Examples - Vitotronic
Without mixing valve
e.g. with Vitotronic 100, Model KW10B
Legend
A Heating circuit
B Spring-loaded flow check valve
C Circulation pump
D Automatic air vent, (field supplied), pressure relief
valve, and temperature pressure gage
E Expansion tank
F Low water cut-off (if required)
Without mixing valve and with DHW
e.g. with Vitotronic 100, KW10B
Legend
A Heating circuit
B Spring-loaded flow check valve
C Circulation pump
D Automatic air vent, (field supplied),
pressure relief valve, and
temperature pressure gage
E Expansion tank
F Low water cut-off (if required
G Domestic hot water storage tank
(indirect-fired)
Connections

Table of Contents

Related product manuals