EasyManua.ls Logo

Viessmann VR1 22 - Page 35

Viessmann VR1 22
52 pages
Print Icon
To Next Page IconTo Next Page
To Next Page IconTo Next Page
To Previous Page IconTo Previous Page
To Previous Page IconTo Previous Page
Loading...
35
5583 571 - 05
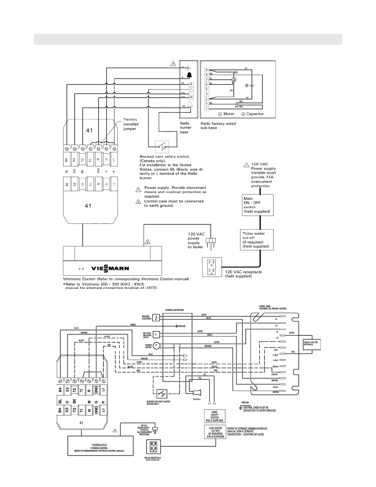
Vitorond 100, VR1 22 to 33, 91 to 140 Installation and Service
Burner Set-up
Electrical Connections (with Vitotronic Control)
(continued)
Riello burner
Legend
BL Blue
OG Orange
BK Black
W White
G Green/Ground
R Red
Y Yellow
V Violet
BR Brown
GY Gray
Carlin burner

Table of Contents

Related product manuals