EasyManua.ls Logo

Viessmann WB1A007 - Before Set-Up; Minimum Clearances

Viessmann WB1A007
76 pages
Print Icon
To Next Page IconTo Next Page
To Next Page IconTo Next Page
To Previous Page IconTo Previous Page
To Previous Page IconTo Previous Page
Loading...
General Information/Set-up
12
Before Set-up
Before placing boiler in its installation
location, ensure all necessary
accessories are installed.
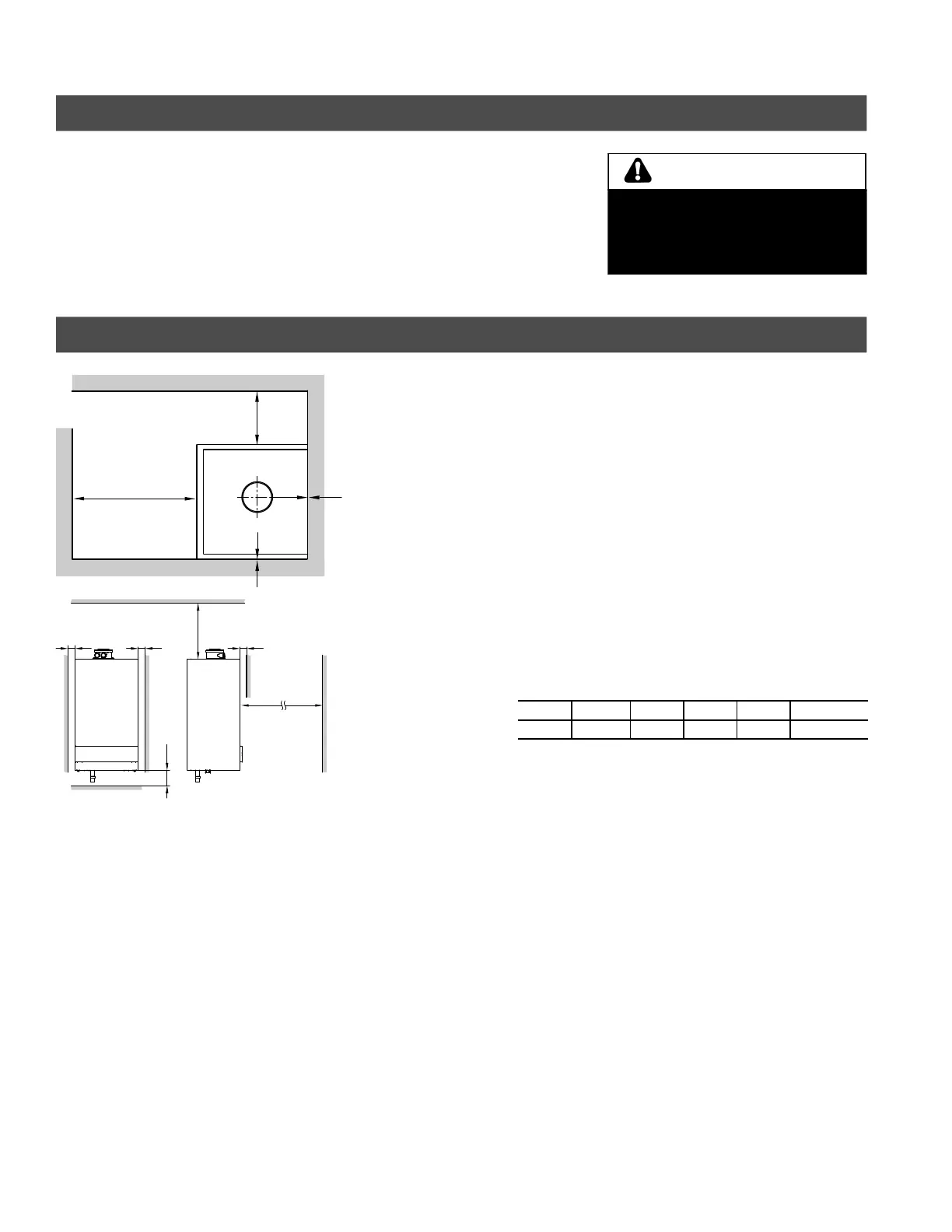
Minimum Clearances
Recommended minimum service clearances
Refer to the illustrations on the left hand side.
Note:
The Vitodens 100-W boiler has passed the zero
inches vent clearance to combustibles testing
requirements dictated by the boiler Harmonized
Standard ANSI Z21.13. CSA 4.9.2005 and therefore
is listed for zero clearance to combustibles when
vented with a single wall special venting system
(AL-29-4C material) or UL/ULC-listed CPVC gas vent
material. The zero inches vent clearance to
combustibles for the Vitodens 100-W boiler
supercedes the clearance to combustibles listing that
appears on the special venting system label.
Clearances to combustibles
Top Front Rear Left Right Vent pipe
*1
0 0 AL, CL 0 0 0 0
AL = Alcove
CL = Closet
*1
Refer to the Installation Instructions of the Vitodens
Venting System for details.
The boiler must be installed in such a
way that gas ignition system
components are protected from
water (spraying, splashing, etc.)
during boiler operation and service.
CAUTION
Top clearance -
12”.
See Vitodens
Venting System
Installation
Instructions.
12”/300 mm
*
4”/100 mm
28”/
700 mm
¼”/5 mm ¼”/5 mm¼”/5 mm
Front
12”/305 mm
Top
*
12”/305 mm
0”/mm
28”/700 mm
Side
0”/mm
Back
S
i
d
e

Related product manuals