EasyManua.ls Logo

Viessmann WB1A007 - Wiring Diagram

Viessmann WB1A007
76 pages
Print Icon
To Next Page IconTo Next Page
To Next Page IconTo Next Page
To Previous Page IconTo Previous Page
To Previous Page IconTo Previous Page
Loading...
Additional Information
71
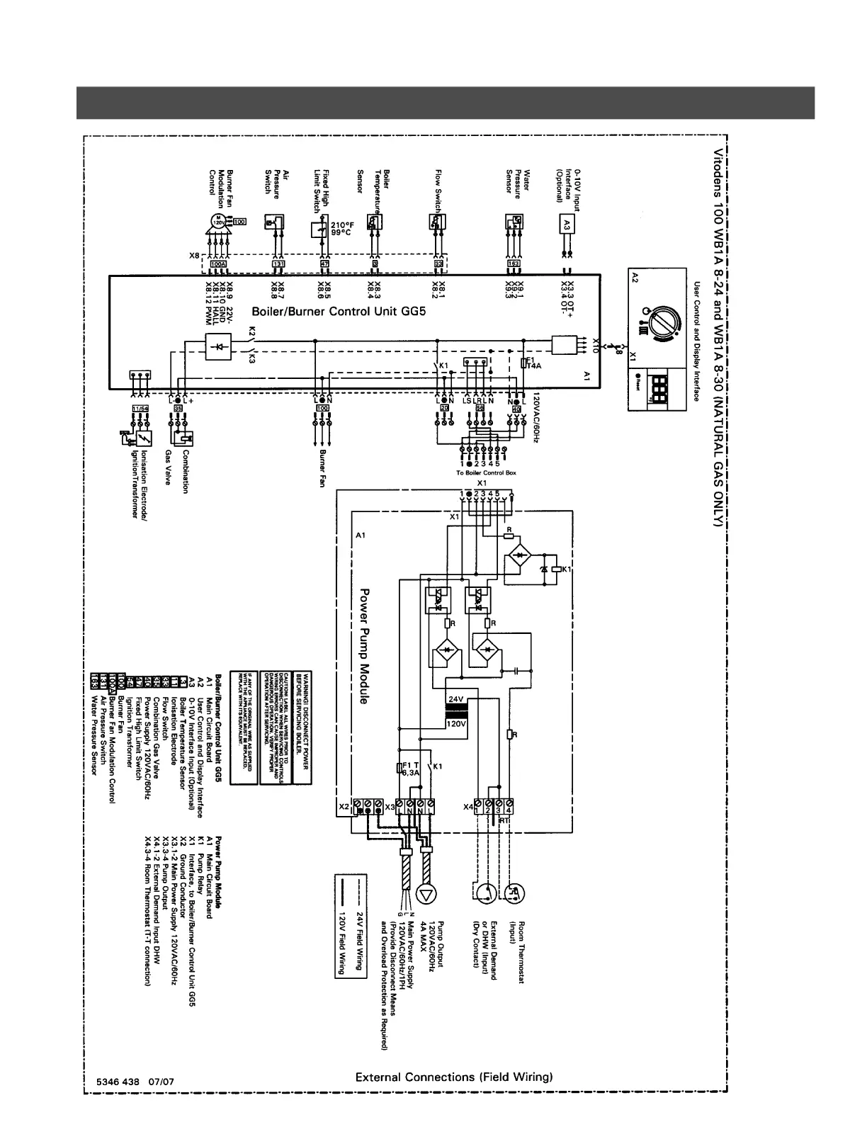
Wiring Diagram
5581 775 1.3
PUMP
PUMP
DHW

Related product manuals