EasyManua.ls Logo

Viessmann WB1A007 - Page 28

Viessmann WB1A007
76 pages
Print Icon
To Next Page IconTo Next Page
To Next Page IconTo Next Page
To Previous Page IconTo Previous Page
To Previous Page IconTo Previous Page
Loading...
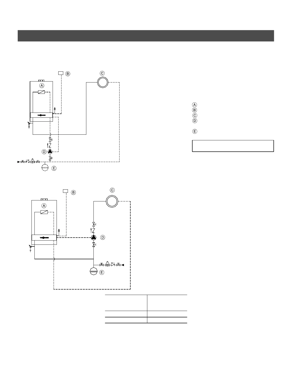
Boiler Connections
28
Installation Examples
(continued)
System Layout 1
Vitodens 100-W, WB1A 8-24, 8-30 with...
one heating circuit
System Layout 1 - Alternate Option
Legend
AV Air vent
PRV Pressure relief valve
Vitodens 100-W
Room thermostat
Heating circuit
Heating circuit pump (field
supplied)
Expansion tank
Ensure that a pressure activated
by-pass is installed. Refer to the table
for the DIP switch setting on page 38.
Please note!
The use of a low-loss header is
recommended if the water flow rate is less
than 1.7 GPM / 400 ltr/h or more than 6.2
GPM / 1400 ltr/h.
The low-loss header is available as
accessory part.
Model No.
Vitodens 100,
Max. flow rate
(GPM/ltr/h)
WB1A 8-24 6.2/1400
WB1A 8-30 6.2/1400
5581 775 1.3
T--T
PRV
AV
*
T--T
PRV
AV
*
IMPORTANT

Related product manuals