EasyManua.ls Logo

Viking Access Systems K-2 - Post Mounting Option

Viking Access Systems K-2
50 pages
Print Icon
To Next Page IconTo Next Page
To Next Page IconTo Next Page
To Previous Page IconTo Previous Page
To Previous Page IconTo Previous Page
Loading...
VIKING TECHNICAL SUPPORT 1.800.908.0884
15
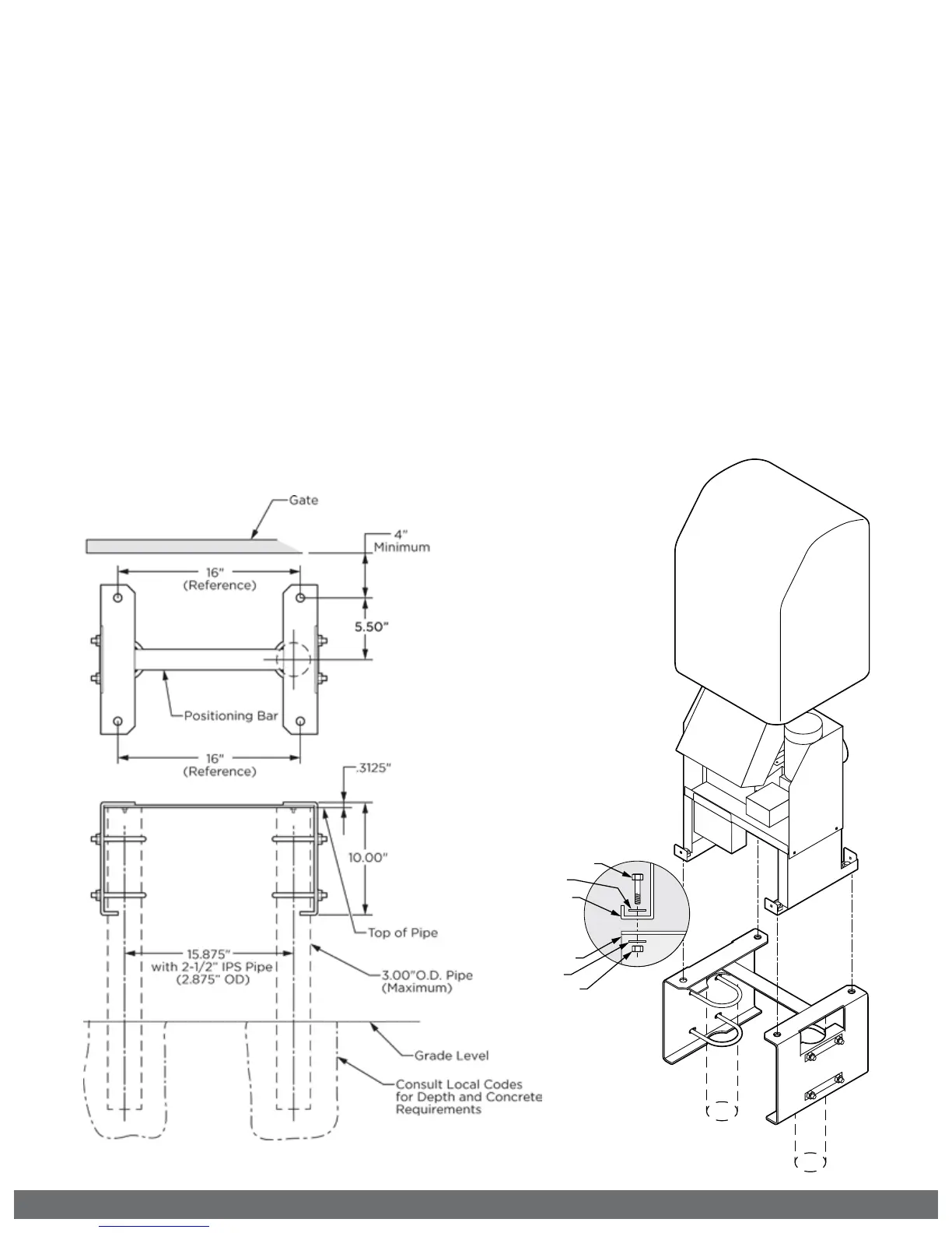
Post Mounting Option
Vikings Pipe Stand Kit for K-2 Operator (part # VA-PSKT) is an efficient and effective
solution when your application requires the operator to be post mounted.
1.
Consult the local building codes for the depth and concrete requirements.
2.
Maximum 3.00” OD pipe.
3.
Main Pieces made of 1/4” material.
4.
Includes Positioning Bar to aid in the installation process.
5.
Provides ample room for conduit pathways.
6.
All Hardware included
! DO NOT run low voltage and high voltage wiring in the same conduit.
! Provide at least 12” separation between low and high voltage conduits.
GATE OPERATOR INSTALLATION
Mounting Nut
Washer
Pipe Stand
Washer
Mounting Bolt
K-2 Gate
Operator
Note:
All Mounting Hardware
Supplied with Pipe Stand

Other manuals for Viking Access Systems K-2

Related product manuals