EasyManua.ls Logo

Viking VCRB5301 - Page 44

Viking VCRB5301
47 pages
Print Icon
To Next Page IconTo Next Page
To Next Page IconTo Next Page
To Previous Page IconTo Previous Page
To Previous Page IconTo Previous Page
Loading...
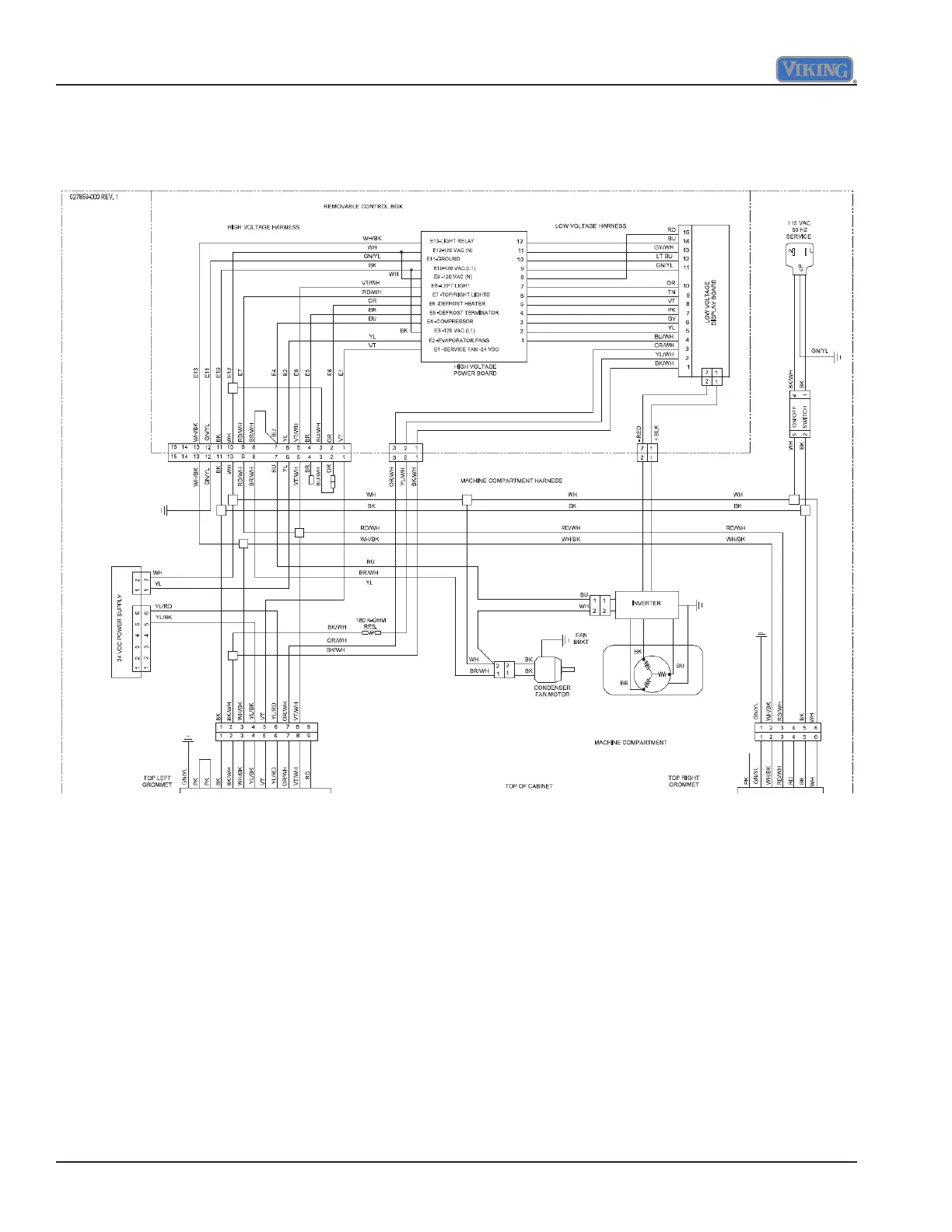
Wiring Diagrams
44 ©2012 Viking Preferred Service
Wiring 30" All Refrigerator Page 1

Table of Contents

Related product manuals