EasyManua.ls Logo

Viscount chorum 60 - 2 General Description

Viscount chorum 60
62 pages
Print Icon
To Next Page IconTo Next Page
To Next Page IconTo Next Page
To Previous Page IconTo Previous Page
To Previous Page IconTo Previous Page
Loading...
4
Viscount Chorum
User Manual
Chorum 90
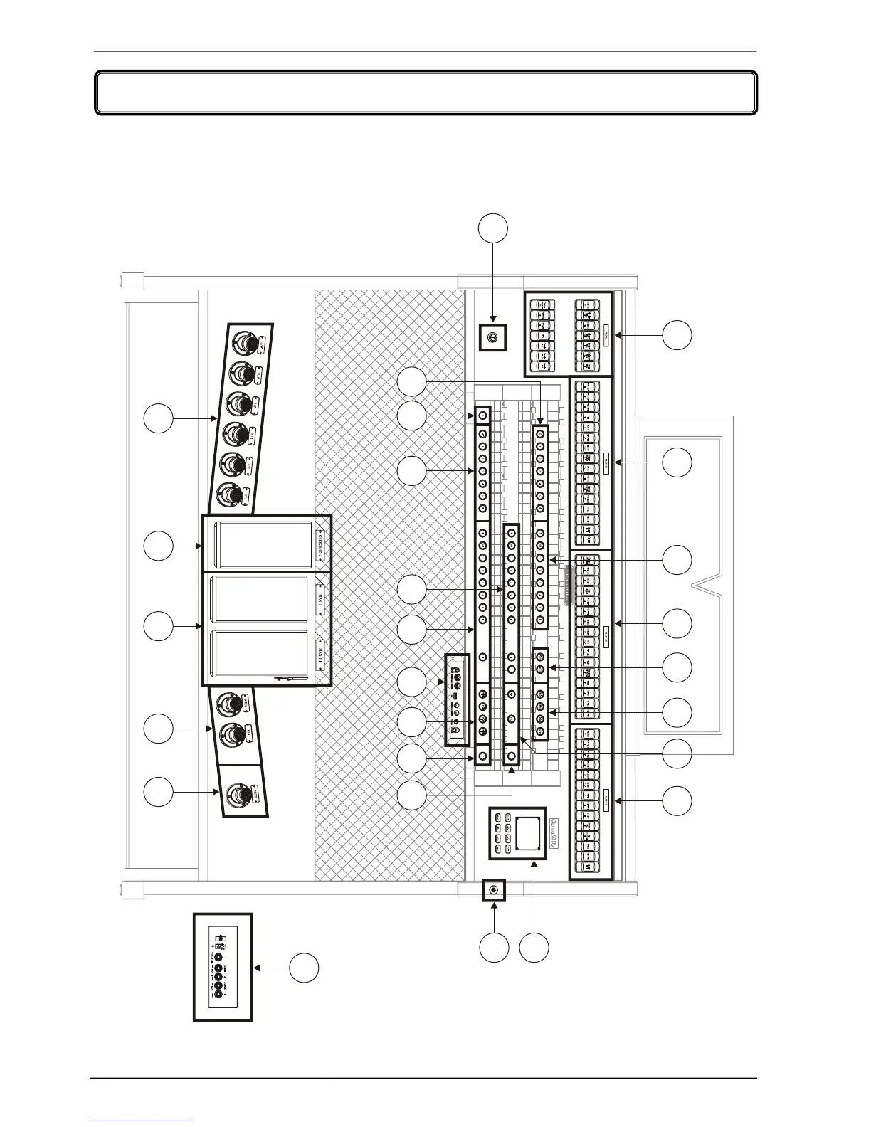
2. GENERAL DESCRIPTION
23
21 22 7 1220
18
17
6
2 3 41479 15
8137101119161512
1

Table of Contents

Related product manuals