EasyManua.ls Logo

Wareforce UL30 - Specifications; Machine Dimensions

Wareforce UL30
72 pages
Print Icon
To Next Page IconTo Next Page
To Next Page IconTo Next Page
To Previous Page IconTo Previous Page
To Previous Page IconTo Previous Page
Loading...
2
07610-004-37-37-P
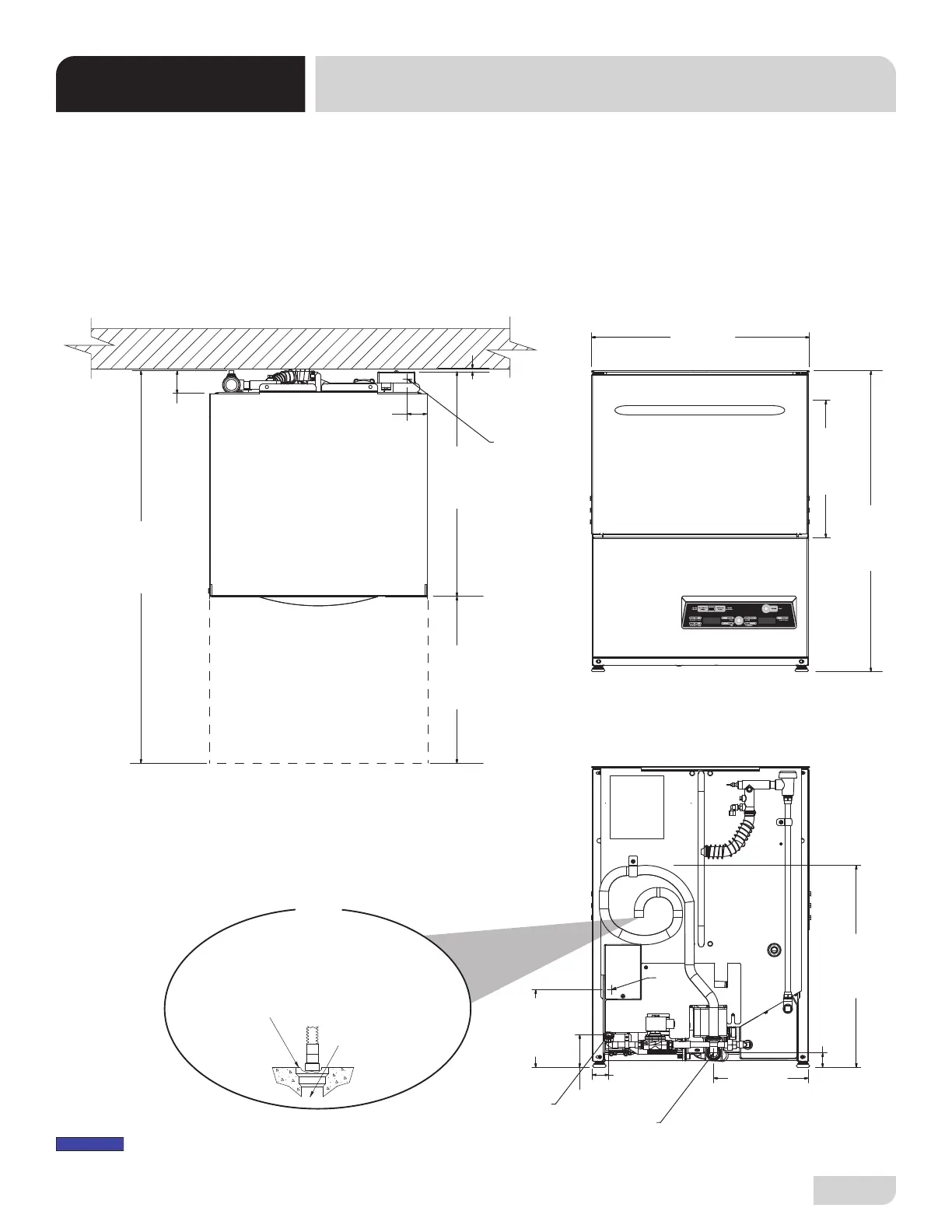
SPECIFICATIONS
MACHINE DIMENSIONS
1 5/8
[41 mm]
24 1/4
[615 mm]
14 1/4
[362 mm]
CLEARANCE
33 5/16
[846 mm]
10 1/2
[267 mm]
1 7/8
[48 mm]
8 5/8
[220 mm]
3 5/8
[92 mm]
2 3/4
[70 mm]
1/4
[7 mm]
25
[635 mm]
16 3/4
[426 mm]
DOOR OPEN
41 3/4
[1061 mm]
A
B
C
BACK
FRONT
TOP
LEGEND
A - Electrical Connection
B - Water Inlet (with 6' Hose)
(3/4" Male GHT, connect to true
1/2" ID line, MIN 110 °F)
C - Drain Hose
(1" ID, install into 1 1/2" MIN Drain with Air-gap)
C
2 1/8
[54 mm]
A
Install Machine
Drain Hose into
1 1/2 [38 mm]
MIN Floor Drain
or Sink
Do NOT install
Drain Hose to
“bottom” of Floor
Drain or Sink.
This can cause
splashback.
All dimensions from the floor can be increased 1”
using the machine’s adjustable feet.
24
[610 mm]
NOTICE
UH30-FND shown.

Table of Contents

Related product manuals