EasyManua.ls Logo

Wartsila 46F - Page 94

Wartsila 46F
208 pages
Print Icon
To Next Page IconTo Next Page
To Next Page IconTo Next Page
To Previous Page IconTo Previous Page
To Previous Page IconTo Previous Page
Loading...
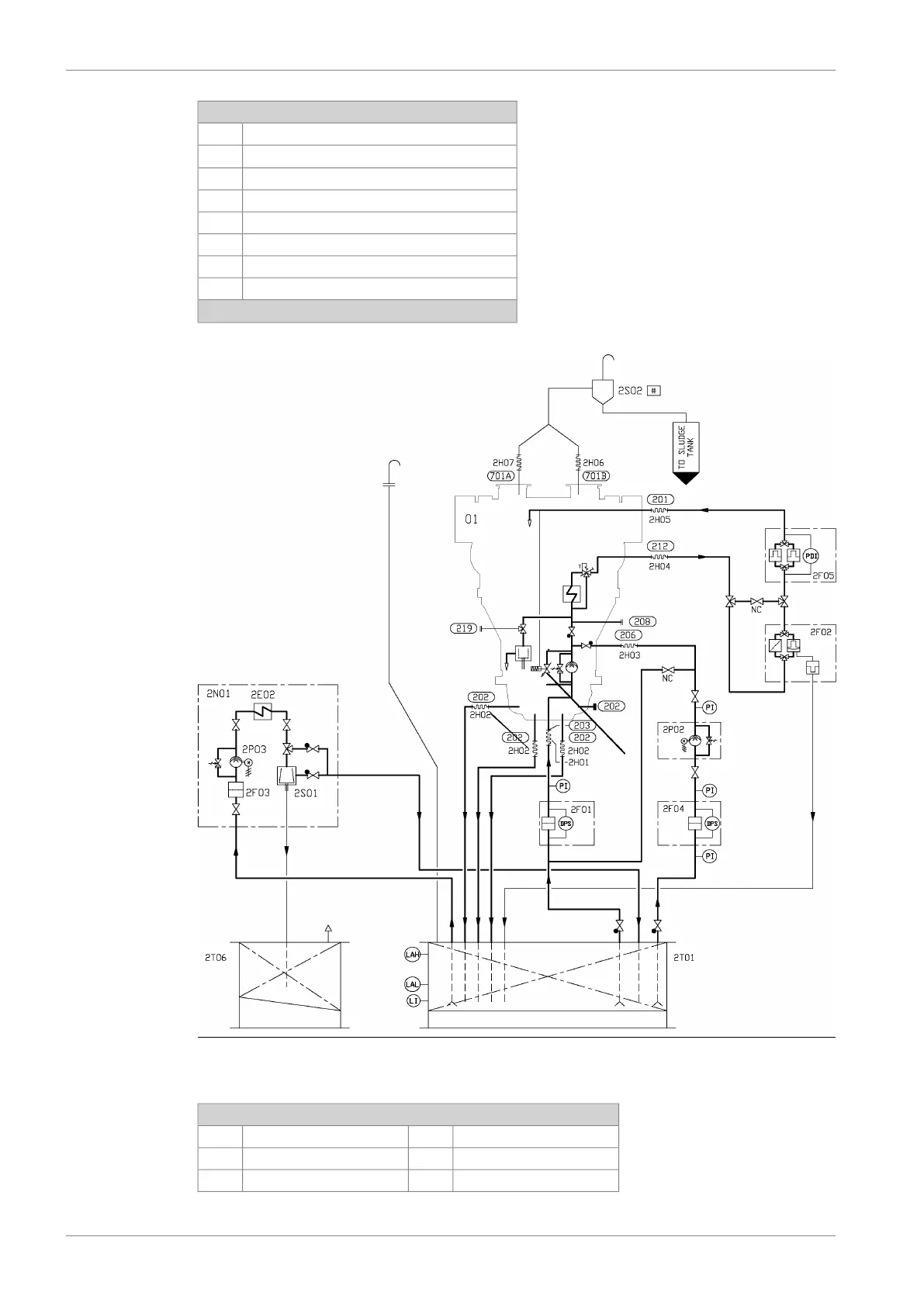
Pipe connections:
Lube oil inlet (to manifold)201
Lubricating oil outlet
*)
202
Lube oil to engine driven pump203
Lube oil from priming pump206
Lubricating oil from electric driven pump208
Lube oil from cooler212
Lube oil sample219
Crankcase ventilation701
*)
Two outlets in each end are available
Fig 7-6 External lubricating oil system, without engine built automatic filter
(DAAF423926)
System components:
Separator pump (Separator unit)2P03Diesel engine Wärtsilä L46F01
Separator (Separator unit)2S01Flexible pipe connections2H0X
Condensate trap2S02Heater (separator unit)2E02
7-8 DAAB605814
Wärtsilä 46F Product Guide7. Lubricating Oil System

Table of Contents