EasyManua.ls Logo

Wartsila 46F - Page 93

Wartsila 46F
208 pages
Print Icon
To Next Page IconTo Next Page
To Next Page IconTo Next Page
To Previous Page IconTo Previous Page
To Previous Page IconTo Previous Page
Loading...
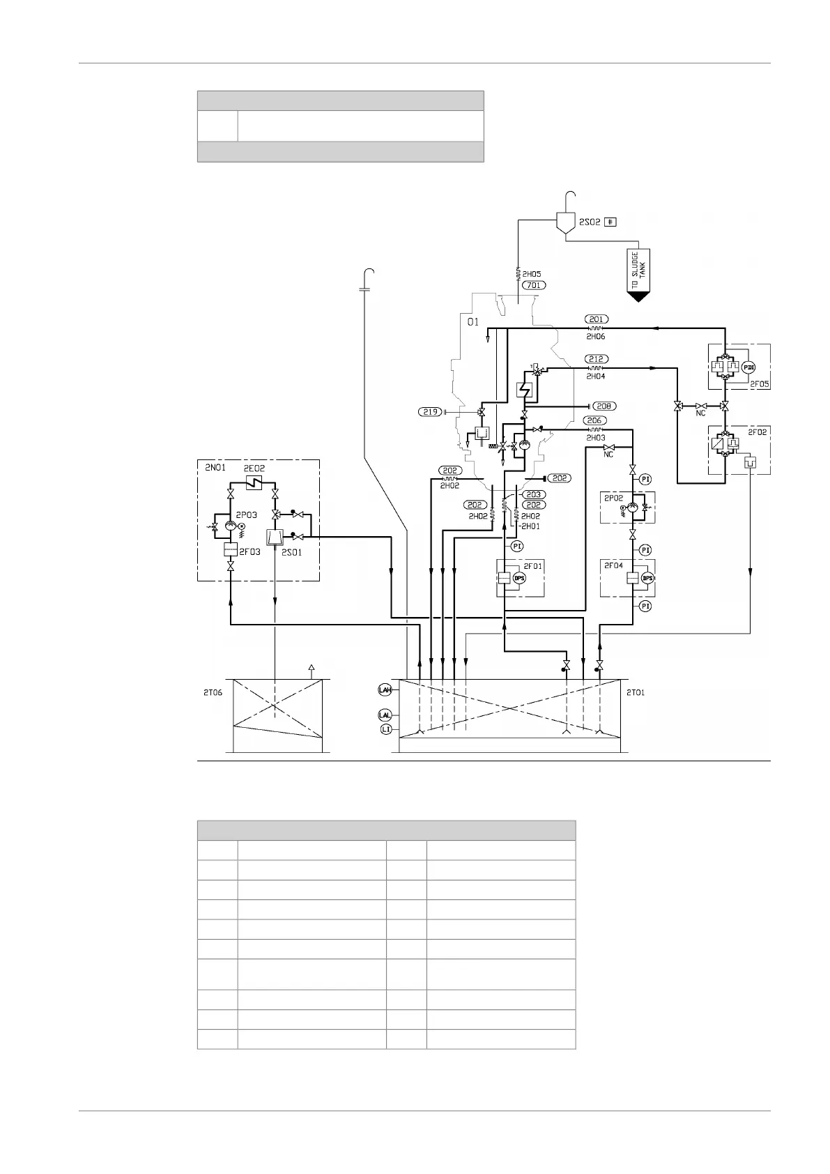
Pipe connections:
Crankcase ventilation701
A/B
*)
Two outlets in each end are available
Fig 7-5 External lubricating oil system, without engine built automatic filter
(DAAF423925)
System components:
Separator pump (Separator unit)2P03Diesel engine Wärtsilä L46F01
Separator (Separator unit)2S01Flexible pipe connections2H0X
Condensate trap2S02Heater (separator unit)2E02
Stand-by pump2P04Suction strainer (main lube pump)2F01
System oil tank2T01Automatic filter (LO)2F02
Sludge tank2T06Suction strainer (separator unit)2F03
Suction strainer (pre lubricating
oil pump)
2F04
Safety filter (LO)2F05
Separator unit2N01
Pre-lubricating oil pump2P02
DAAB605814 7-7
7. Lubricating Oil SystemWärtsilä 46F Product Guide

Table of Contents

Related product manuals