EasyManua.ls Logo

Wayne EH - WIRING DIAGRAMS; Wiring Diagram R7284 G;R8184 G; Wiring Diagram R7284 P

Wayne EH
40 pages
Print Icon
To Next Page IconTo Next Page
To Next Page IconTo Next Page
To Previous Page IconTo Previous Page
To Previous Page IconTo Previous Page
Loading...
16
WIRING DIAGRAMS
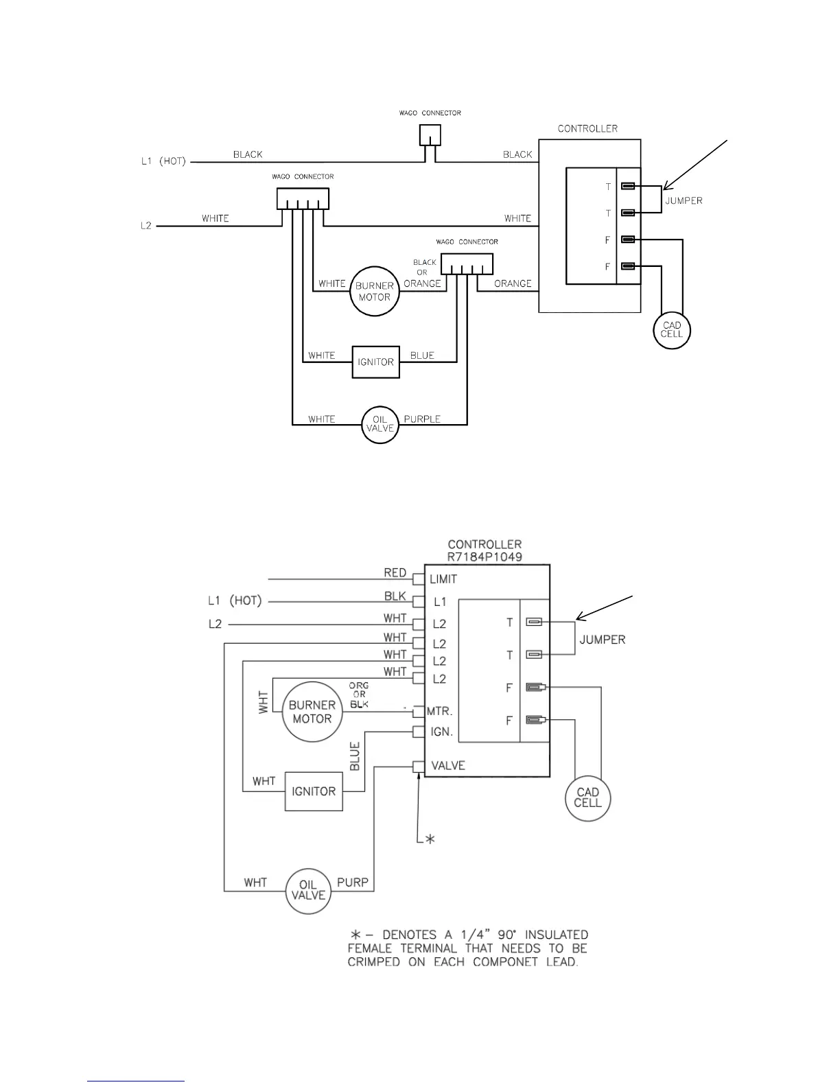
Figure 3- Wiring Diagram for 120V Honeywell R7284G & 230V Honeywell R8184G Controls
Figure 4- Wiring Diagram for 120V Honeywell R7284P Control
REMOVE JUMPER
TO USE
THERMOSTAT
TERMINALS
REMOVE JUMPER
TO USE
THERMOSTAT
TERMINALS

Related product manuals