EasyManua.ls Logo

Weber Summit 460 - Page 47

Weber Summit 460
178 pages
Print Icon
To Next Page IconTo Next Page
To Next Page IconTo Next Page
To Previous Page IconTo Previous Page
To Previous Page IconTo Previous Page
Loading...
WWW.WEBER.COM
®
47
UBICACIÓN DE LA CAJA PARA TANQUES DE PROPANO
LICUADO
Al seleccionar una ubicación adecuada para la caja para tanques de propano licuado,
preste atención a tales asuntos como la exposición al viento, la proximidad al paso de la
gente y en mantener cualquier línea de suministro de gas lo más corta posible. Nunca
coloque la caja Summit
®
para tanques de propano licuado en un garaje, pasadizo
techado, cobertizo, bajo un voladizo desprotegido o cualquier área encerrada. Coloque
la caja para tanques de propano licuado y la estructura de manera que exista suficiente
espacio para evacuar el área de manera segura en caso de un incendio.
SEPARACIÓN DE SUPERFICIES O ESTRUCTURAS
COMBUSTIBLES
ADVERTENCIA: La estructura, las encimeras de la “isla”
y las áreas de trabajo adyacentes a la instalación de la
caja para tanques de propano licuado deben construirse
exclusivamente con materiales no combustibles.
NOTA: Si tuviese cualquier pregunta sobre que materiales son considerados no
combustibles, póngase en contacto con su proveedor local de materiales de
construcción o con el cuerpo de bomberos.
PELIGRO
El uso de cualquier otra manguera o ensamble de regulación
pudiera ser peligroso, y pudiera no brindar un suministro de
gas apropiado a la Barbacoa Empotrada Summit
®
, y pudiera
resultar en un fuego o explosión que causase lesiones
corporales graves o la muerte y daños a la propiedad.
PELIGRO
El no construir un cajón para el cilindro de gas propano
licuado de 20 lb de acuerdo con los requisitos de
ventilación, retención del cilindro y separación del cilindro
de gas propano licuado de fuentes de calor, exigidos por
la norma ANSI para artefactos de gas para cocinar al aire
libre “Outdoor Cooking Gas Appliances, ANSI Z21.58 CSA
1.6,” pudiera ser peligroso y pudiera resultar en un fuego o
explosión causando graves lesiones corporales o la muerte
y daños a la propiedad.
Si usted no sigue exactamente las indicaciones dadas en las declaraciones de
PELIGRO, quedará anulada la garantía sobre la Barbacoa de Gas Empotrada
Summit
®
.
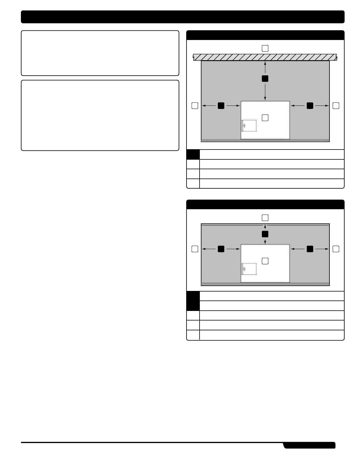
SEPARACIONES - INSTALACIÓN ADYACENTE A UNA ESTRUCTURA
a
b b
c
1
11
1 24" (610 mm) cualquier superficie
a Compartimiento de tanque de propano licuado
b Cualquier superficie
c Superficie no combustible
SEPARACIONES - INSTALACIÓN TIPO “ISLA
a
b b
c
2
11
1 24" (610 mm) cualquier superficie
2 10
1
2" (267 mm) mínimo
a Compartimiento de tanque de propano licuado
b Cualquier superficie
c Superficie no combustible
INSTRUCCIONES PARA EL COMPARTIMIENTO EMPOTRADO DEL TANQUE

Table of Contents

Related product manuals