EasyManua.ls Logo

Weidmüller ACT20X - Page 38

Default Icon
110 pages
Print Icon
To Next Page IconTo Next Page
To Next Page IconTo Next Page
To Previous Page IconTo Previous Page
To Previous Page IconTo Previous Page
Loading...
38 1066540000/00/02.09
51
42
41
52
54
53
FLASH
CPU
14
13
11
R Ex3
CPU
EEPROM
Input +
Input Gnd.
Driver
12
Channel 2
Channel 1
V
+
V
+
Switch
NPN
PNP
44
43
Input +
Input Gnd.
V
+
V
+
Switch
NPN
PNP
Output +
R Ex2
R Ex1
24
23
21
R Ex3
22
Input +
R Ex2
R Ex1
Output, Gnd.
Output, Gnd.
Device status, Green
Ch. 1 status, Yellow/Red
Ch. 2 status, Yellow/Red
Statusrelay N.C.
Statusrelay N.C.
Gnd. -
Supply +24 VDC
CBX200 with Configuration Software
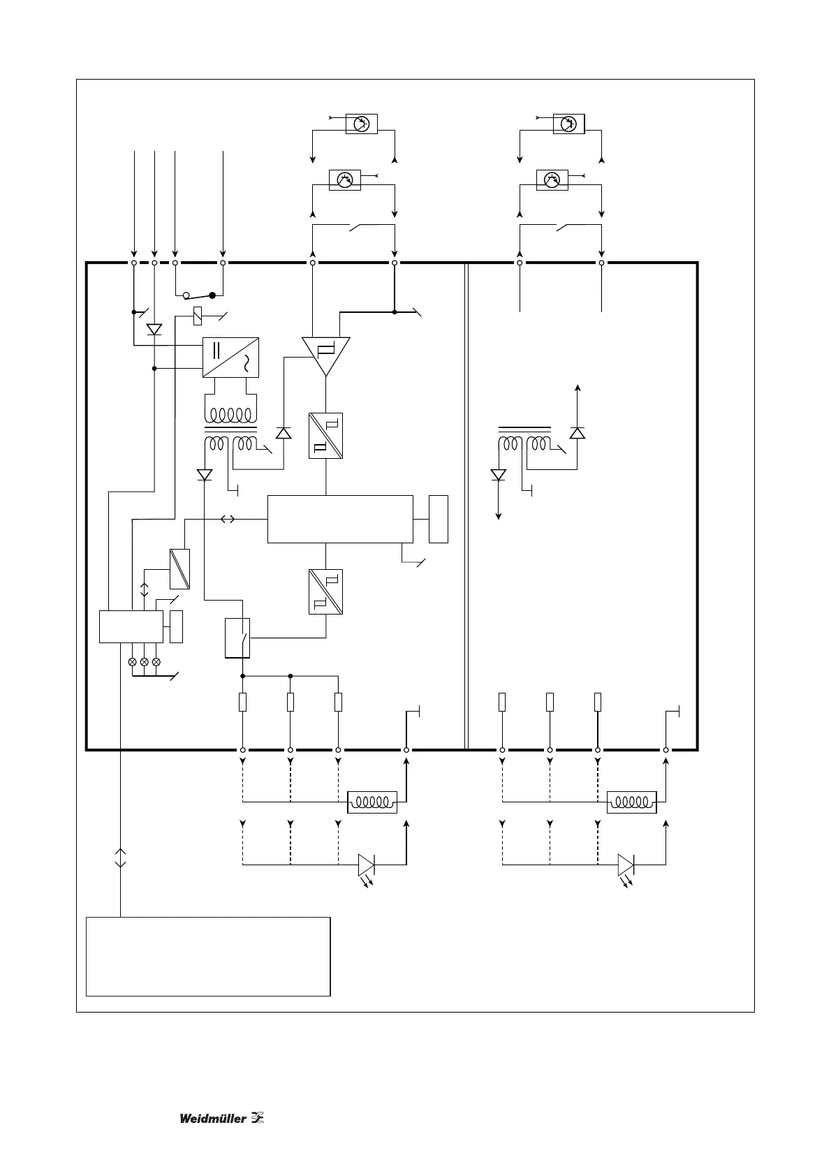
Illustration 7-8: Functional Block Diagram