EasyManua.ls Logo

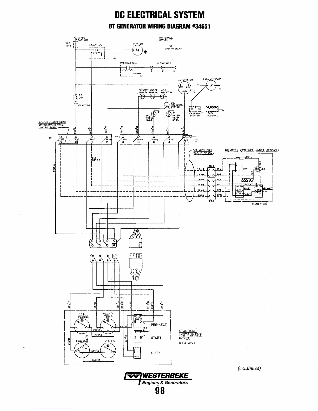
Westerbeke W-27A - DC Electrical System Wiring Diagrams (Continued); BT Generator Wiring Diagram #34651

Westerbeke W-27A
110 pages
Print Icon
To Next Page IconTo Next Page
To Next Page IconTo Next Page
To Previous Page IconTo Previous Page
To Previous Page IconTo Previous Page
Loading...
+
12.
VDC
,_
,BATTERY
SEE : :
NOTE.
1 L J
~--;---l
REMOVE
JVMPER
WH!:N
CONNECTING
REM"TE
CONTROL
?ANE~
Tel
,
I
,
I
I
I
I
I
I
I
I
I
I
I
I
I
I
I
r 1
I I C a
I
120A
L 1
I
I
,
I
I
I
r
I
I
I
I
,
I
I
I
I
I
So~Non-2
L
__
L-
______
_
I
I
I
I
I
'SEE:
i
NOTE
-
3
I
I
r
I
,
I
,
L_
DC
ELECTRICAL
SYSTEM
BT
GENERATOR
WIRING
DIAGRAM
#34651
I I
BATTERY<:;=>
RETURN 1
GNO
TO
BLOCK
: : REMOTE
CONTROL
PANEL(oPTIONAL)
! i
:-----;;;------,
I I
rr--
"II
, I
TB4
I J
r-
\
I~
! i
--
.!.t\!:!.
~~tU
I :
'''LED
I
L
___
+
__
-_~_-_:_:._+~====-=------
----
l~~
=:£fih21~r.+~
~I
,J
START
~
----
-\;'
--
.I
e
.!.-!.
Ri9-rtl
~--
:~4
,
J'
_____
,_____
_
_______
~-!.!!l.:.!-
.E.E.Q....I1
14R
I
TIl
3
L'-:--
-
=-=-=-=-=-==-
(REAR
VIEW)
~--I--t----'-l'
",--~....¢.o-"!-+~~.,--o-~~:+""'t"""t--'
r:::=~-'
PRE
-HEAT
I
STANDARD
INSTRUf.llENT
I
START
~
(REAR
VIEW)
. STOP I
~-----~.-----------------.------~
(continued)
Engine~
&
Generators
98

Table of Contents

Related product manuals