EasyManua.ls Logo

Whirlpool 200 380 21 - Wiring Diagram

Whirlpool 200 380 21
12 pages
Print Icon
To Next Page IconTo Next Page
To Next Page IconTo Next Page
To Previous Page IconTo Previous Page
To Previous Page IconTo Previous Page
Loading...
SERVICE
12.07.2002 / Page 10 200 380 21 Whirlpool Europe
Doc. No: 4812 718 18097 8545 856 01600 Customer Service
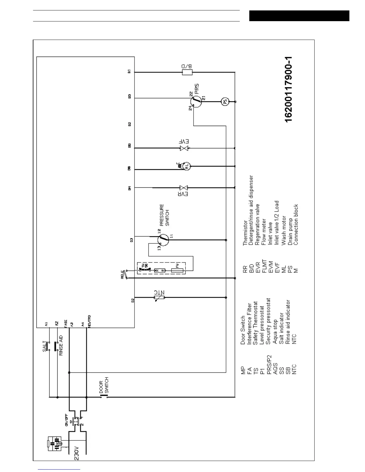
Wiring diagram

Related product manuals