EasyManua.ls Logo

Whirlpool 4322452 - Page 85

Whirlpool 4322452
88 pages
Print Icon
To Next Page IconTo Next Page
To Next Page IconTo Next Page
To Previous Page IconTo Previous Page
To Previous Page IconTo Previous Page
Loading...
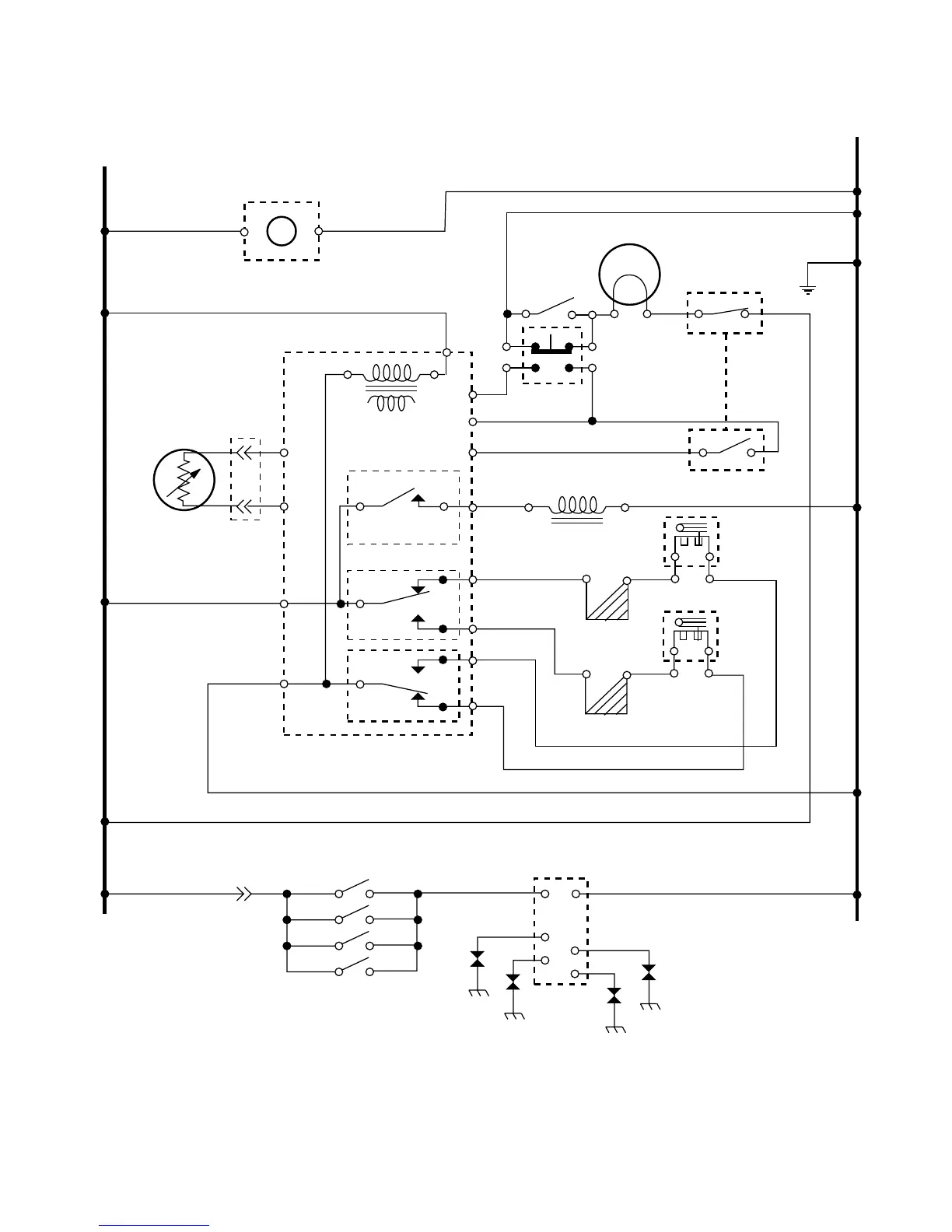
Page 6-15
L1
N
BK
BK
V
V
W
W
W
BU
BU
RR
BR
BU
GY
Y
Y
W
W
W
W
W
BK BK
BK
BK
OVEN
TEMP
SENSOR
OVEN CONTROL
TRANSFORMER
P5
P1-1
P1-5
P1-3
P4
P1-6
P1-7
P3-1
P2-1
P3-4
P3-2
P2-4
P2-2
LATCH SOLENOID
RELAY
BROIL
RELAY
BAKE
RELAY
LATCH
SOLENOID
DOOR
LATCH SW.
DOOR
LATCH SW.
BAKE VALVE
BROIL VALVE
BAKE IGNITOR
BROIL IGNITOR
IGNITOR MODULE
DOOR
LIGHT SW.
OVEN LIGHT
TIMER
(IF EQUIPPED)
MANUAL
OVEN LIGHT
SWITCH
(IF EQUIPPED)
GND
N.O.
N.O.
SURFACE BURNER
IGNITOR SWITCHES
Self-Clean Range

Table of Contents

Related product manuals