EasyManua.ls Logo

Whirlpool ADN503 - Electronic Model Operations; Electronic Programming and Operation

Whirlpool ADN503
34 pages
Print Icon
To Next Page IconTo Next Page
To Next Page IconTo Next Page
To Previous Page IconTo Previous Page
To Previous Page IconTo Previous Page
Loading...
ISTRUZIONI PER L’INSTALLATORE
INSTRUCTIONS FOR THE INSTALLER
ANLEITUNGEN FÜR DEN INSTALLATEUR
NOTICE POUR L'INSTALLATEUR
INSTRUCCIONES PARA EL INSTALADOR
COMPACT Combi Direct 7 / 11 x 1/1GN 7 / 11 x 2/1GN
7
no. 07 x 2/1GN Electric
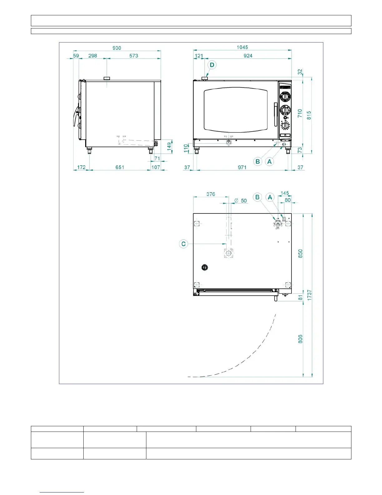
1.3C DIMENSIONI
1.3C DIMENSIONS
1.3C ABMESSUNGEN
1.3C DIMENSIONS
1.3C MEDIDAS
Modelli Modèles Dimensioni Dimensions Capacità e distanza (passo) tra le teglie Capacité et écart entre les grilles
Models Modelos Dimensions Medidas Capacity and distance between trays Capacidad y distancia (paso) entre las fuentes
Modelle Abmessungen Fassungsvermögen und Abstand der Bleche
07 x 2/1GN
14 x 1/1GN
Electric cm 105 x 93 x h 82
n°07 x 2/1 GASTRO NORM
n°14 x 1/1 GASTRO NORM
67 mm
A
Connessione elettrica
Electrical connection
Elektroanschluss
Branchement électrique
Conexión eléctrica
B Entrata acqua φ 3/4
Water inlet
φ
3/4”
Wasserzufuhr φ 3/4”
Arrivée eau
φ
3/4
Entrada agua φ 3/4
C Scarico camera cottura φ 40mm
Water drainage
φ
40mm
Wasserablauf φ 40mm
Vidange eau
φ
40mm
Desagüe φ 40mm.
D Sfiato camera cottura φ 60mm
Cooking chamber relief valve
φ
60mm
Ablaßventil Garraum φ 60mm
Event chambre de cuisson
φ
60mm
Desagüe camara coccion
φ 60mm.

Other manuals for Whirlpool ADN503

Related product manuals