EasyManua.ls Logo

Whirlpool CAE2745 - Tests de Dépannage

Whirlpool CAE2745
40 pages
Print Icon
To Next Page IconTo Next Page
To Next Page IconTo Next Page
To Previous Page IconTo Previous Page
To Previous Page IconTo Previous Page
Loading...
POUR LE TECHNICIEN SEULEMENT
PAGE 32
NE PAS ENLEVER NI DÉTRUIRE
TESTS DE DÉPANNAGE
TEST N
o
1 : Commande principale
Ce test vérifie le courant à l’alimentation et à la sortie de la
commande principale. On assume dans ce test que le courant
d’alimentation est à la tension requise à la prise murale.
1. Débrancher la laveuse ou déconnecter la source de courant
électrique.
2. Enlever la console pour accéder à la commande principale.
3. Vérifier que TOUS les connecteurs sont bien complètement
insérés dans la commande principale.
4. Brancher la laveuse ou reconnecter la source de courant
électrique.
5. Prendre un voltmètre réglé sur AC et connecter l’antenne de
couplage noire avec J7-3 (neutre) et l’antenne de couplage
rouge avec J7-1 (L1).
S’il y a 120 VAC, passer à l’étape 6.
S’il n’y a pas 120 VAC, vérifier la continuité du cordon
d’alimentation (Voir Fig. 9).
6. Est-ce que le témoin DEL de diagnostic est allumé ou éteint?
(voir la figure 3 ci-dessous pour connaître l’emplacement du
témoin DEL)
Allumé : (il y a +5VDC) passer à l’étape 7.
Éteint : (il n’y a pas +5VDC) passer à l’étape 8.
7. Prendre un voltmètre réglé sur DC et connecter l’antenne
de couplage noire avec J2-3 (circuit de mise à la terre) et
l’antenne de couplage rouge avec J2-4 (+13 VDC).
S’il y a +13 VDC, l’alimentation du module de commande
principal est en bon état.
S’il n’y a pas +13 VDC, passer à l’étape 8.
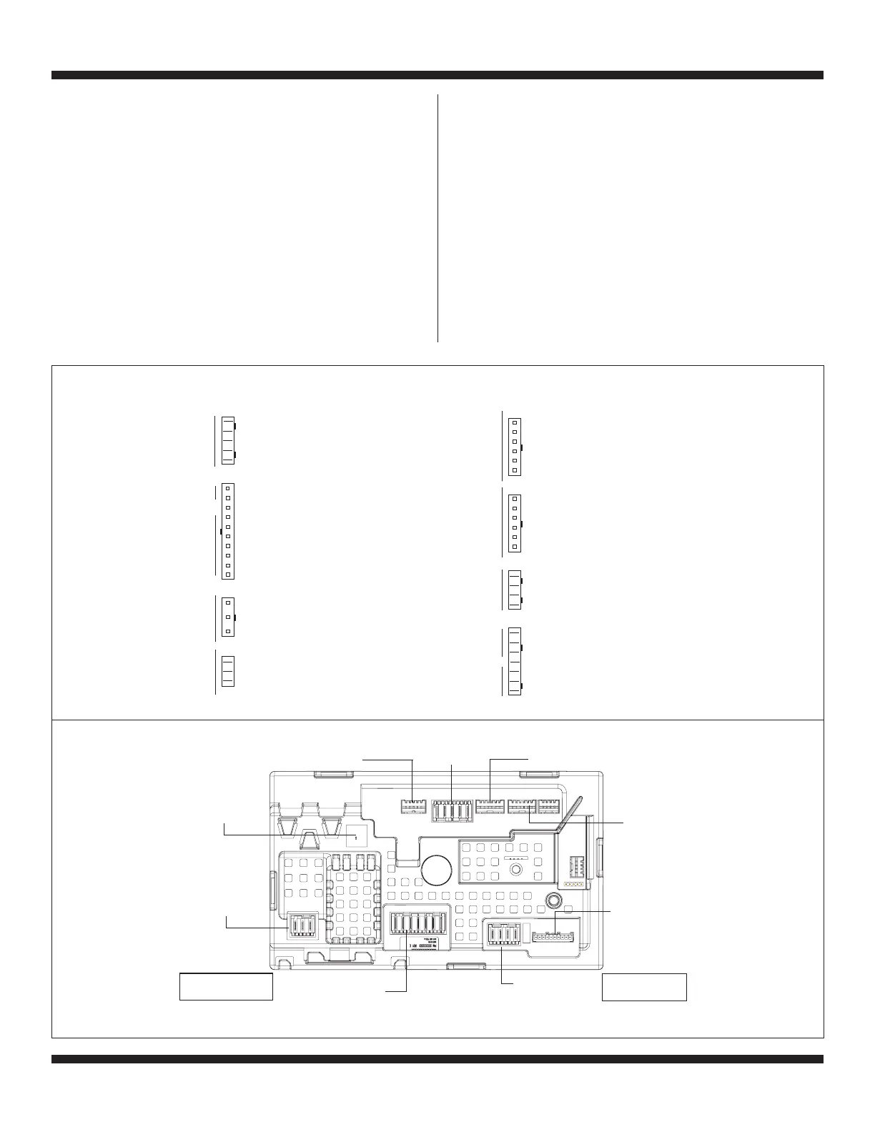
Connecteurs et brochage de la commande principale (Figure 3)
J2-5 OUVERT
J2-4 NOIR +13VDC
J2-3 GRIS -5VDC (TERRE CIRCUIT)
J2-2 ROSE ENTRÉE TR/MIN
J2-1 BLEU ENTRÉE POSITION CHANGEUR VITESSE
J3-10 NOIR ENTRÉE THERMISTANCE (HYBRIDE)
J3-9 NOIR TERRE THERMISTANCE (HYBRIDE)
J3-8 OUVERT
J3-7 OUVERT
J3-6 OUVERT
J3-5 BLEU VANNE FROIDE (L1)
J3-4
ROUGE
VANNE CHAUDE (L1)
J3-3 OUVERT
J3-2 OUVERT
J3-1
BLANC
NEUTRE
J4-3 BLEU ENTRÉE TRANSDUCTEUR DE PRESSION
J4-2 OUVERT
J4-1 BLEU -5VDC (TERRE CIRCUIT)
J7-3 NOIR NEUTRE
J7-2 VERT TERRE CHÂSSIS
J7-1 NOIR L1
J2
J3
J7
J4
J10
J11
J16
J15
CHGR VITESSE VANNES TEMP
CORDON
D’ALIMENTATION
TRANSDUCTEUR
DE PRESSION
ENCODEURS ROTATIFSENCODEURS ROTATIFS
VERROU DU
COUVERCLE
VIDANGE MOTEUR
J10-6 NOIR RANG 2
J10-5 NOIR RANG 3
J10-4 NOIR COLONNE 0
J10-3 NOIR COLONNE 1
J10-2 NOIR COLONNE 2
J10-1 NOIR COLONNE 3
J11-6
ROUGE
RANG 4
J11-5
ROUGE
RANG 5
J11-4
ROUGE
COLONNE 0
J11-3
ROUGE
COLONNE 1
J11-2
ROUGE
COLONNE 2
J11-1
ROUGE
COLONNE 3
J15-4
ROUGE
CONTACTEUR VERROU
J15-3
BLANC
NEUTRE
J15-2 BLEU
ENTRÉE CONTACTEUR COUVERCLE
J15-1
JAUNE
BOBINE CONTACTEUR VERROU (L1
)
J16-7 ORN
BOBINAGE MOTEUR ANTI-HORAIRE (L1)
J16-6
ROUGE
BOBINAGE MOTEUR HORAIRE (L1)
J16-5 OUVERT
J16-4
BLANC
MOTEUR (NEUTRE)
J16-3 BU CL MOTEUR POMPE VIDANGE (L1)
J16-2
BL/BU
MOTEUR CHANGEUR VITESSE (NEUTRE)
J16-1 MAR
MOTEUR CHANGEUR VITESSE (L1)
DEL de
diagnostic
J4-Transducteur de pression
J7-Cordon
d’alimentation
J16-Moteur à
condensateur
permanent/vidange
J15-Verrou
du couvercle
J3-Capteur de
température/vannes
= indique la broche 1
J2-Changeur
de vitesse
J10-Encodeurs
rotatifs
J11-Encodeurs rotatifs *
* Non disponible
sur tous les modèles.
J7
J2
J4
J3
J16
J15
J11
J10

Related product manuals