EasyManua.ls Logo

Whirlpool WOS51EC0H - Page 35

Whirlpool WOS51EC0H
84 pages
Print Icon
To Next Page IconTo Next Page
To Next Page IconTo Next Page
To Previous Page IconTo Previous Page
To Previous Page IconTo Previous Page
Loading...
For Service Technician Use Only
DIAGNOSTICS & TROUBLESHOOTING
Whirlpool
®
Smart Wall Ovens
n
2-17
Code Description Explanation and Recommended Procedure
F6E1 Over temperature NOTE: Before starng any test, cycle power to the oven
(power o, wait 10 seconds, then power on).
PROCEDURE: Before proceeding, verify the error code by entering the Diagnoscs Menu and
selecng “Error Diagnoscs”.
1. Unplug the oven or disconnect power.
2. Check for elements shorted to ground.
Check resistance of elements:
a. PX4-2 and PX3-2 to check Broil element (13.2Ω to 14.6Ω)
b. PX1-1 and PX3-2 to check Bake element (19Ω to 21Ω)
c. PX1-3 and PX3-2 to check Convect element (16.6Ω to 18.4Ω)
(For Microwave Oven Combinaon)
3. If there is a short to ground, the control is good. Look for element failures.
4. Check for shorted relays. Disconnect PX1 and PX4 connectors and check for shorts between:
a. PX1-1 and PX1-2 (Bake relay)
b. PX1-3 and PX1-4 (Convect relay) (For Microwave Oven Combinaon)
c. PX4-1 and PX4-2 (Broil relay)
5. If there is a shorted relay, replace the Copernicus ACU. Go to Step 9.
6. If everything is correct, disconnect connector P3 from the Copernicus ACU.
7. Measure the resistance of the oven sensor. It should be 1000Ω to 1200Ω at 77°F (25°C).
8. Check sensor for short to ground. If checks on sensor are not correct, replace the sensor and
repeat the checks.
9. Reassemble all parts and panels before operang.
10. Plug in microwave oven or reconnect power.
11. Enter the Status screen in the Diagnoscs mode and check the Status screen to verify oven
temperature shown in display is correct (ambient temperature). If not, unplug the oven or
disconnect power, and replace the Copernicus ACU.
NOTE: On the Status screen, the unit of measurement can be Celsius or Fahrenheit,
depending on the user sengs.
12. Reassemble all parts and panels before operang.
13. Plug in microwave oven or reconnect power.
14. Verify operaon is normal. Re-enter the Diagnoscs mode and remove error code(s).
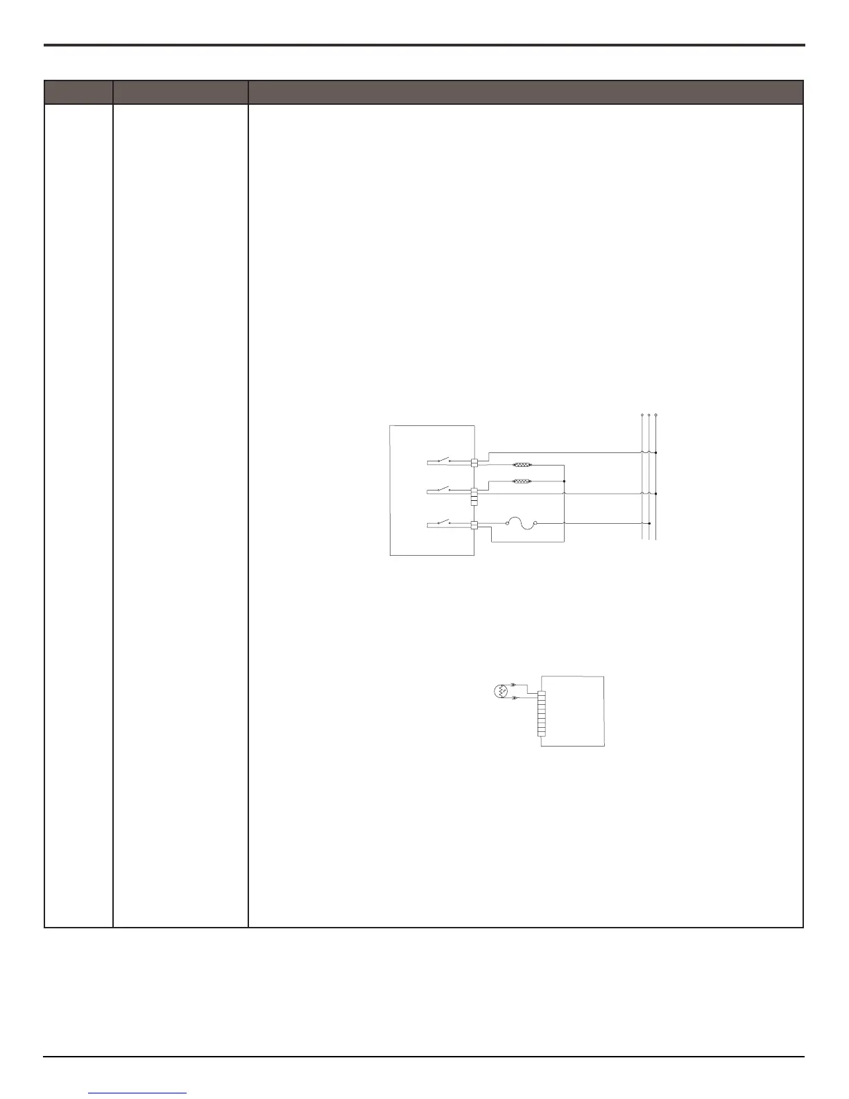
Copernicus
ACU
K11
K10
K3
BU
BU
Broil - 3600W
BU
RD
Bake - 2800W
RD
RD
RD
BK
PX4
PX1
PX3
Temperature Limiter
Open Temp 170¤ C/338¤ F
RD/WH
1
1
1
2
2
2
3
4
P3
Oven
Te
mperature
Sensor
V
V
Copernicus
ACU
10
1
2
3
4
5
6
7
8
9

Related product manuals