EasyManua.ls Logo

Williams PIN-BOT - Page 60

Williams PIN-BOT
79 pages
Print Icon
To Next Page IconTo Next Page
To Next Page IconTo Next Page
To Previous Page IconTo Previous Page
To Previous Page IconTo Previous Page
Loading...
FUTURE
USE
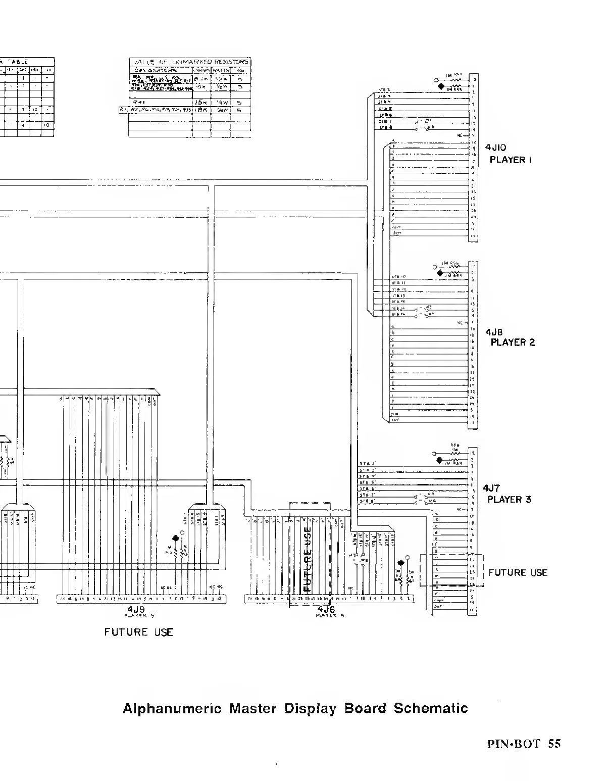
Alphanumeric Master Display
Board Schematic
PIN*BOT
55

Related product manuals