EasyManua.ls Logo

Wolf CSO24 - Electrical Requirements

Wolf CSO24
9 pages
Print Icon
To Next Page IconTo Next Page
To Next Page IconTo Next Page
To Previous Page IconTo Previous Page
To Previous Page IconTo Previous Page
Loading...
Convection Steam Oven (CSO24)
Installation Information
2-8
#821162 - Revision A - January, 2012
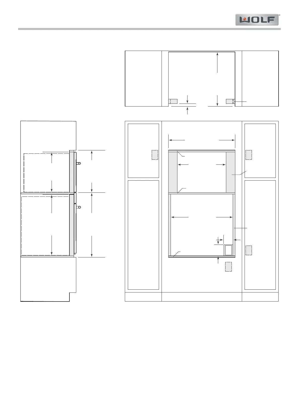
Flush Inset Installation with E-Series Wall Oven
SIDE CLEATS
24
3
/4"*
(629) min
FLUSH INSET
DEPTH
*For black glass model, increase dimension by
1
/4" (6).
NOTES: Minimum base support for steam oven 100 lbs
(45 kg) and E series oven 250 lbs (113 kg).
Electrical supply for steam oven must be located in adjacent cabinet within 3'
(.9 m) of opening.
Location of electrical supply within E series oven opening may require additional cabinet depth.
Cleats may be visible and should be finished to match cabinetry.
Dashed line represents profile of unit.
FRONT VIEWSIDE VIEW
TOP VIEW
30
3
/8" (772) min
FLUSH INSET WIDTH
17
11
/16" (449)
OPENING
HEIGHT
18
3
/8"
(467) min
FLUSH INSET
HEIGHT
28
1
/2" (724)
E SERIES OVEN
OPENING WIDTH
7
/16" (11)
BOTTOM CLEAT
1" (25)
SIDE CLEATS
5"
(127)
4"
(102)
E
E
E
27
3
/16"
(691)
OPENING
HEIGHT
28
1
/2"
(724) min
FLUSH INSET
HEIGHT
22
1
/4" (565)
STEAM OVEN
OPENING WIDTH
5
/8" (16) CLEAT
4
1
/16" (103)
SIDE CLEATS
EE
1" (25)*
7
/16"(11) TOP CLEAT

Other manuals for Wolf CSO24

Related product manuals