EasyManua.ls Logo

Wolf CSO24 - Installation Information

Wolf CSO24
9 pages
Print Icon
To Next Page IconTo Next Page
To Next Page IconTo Next Page
To Previous Page IconTo Previous Page
To Previous Page IconTo Previous Page
Loading...
Installation Information
Convection Steam Oven (CSO24)
2-7
#821162 - Revision A - January, 2012
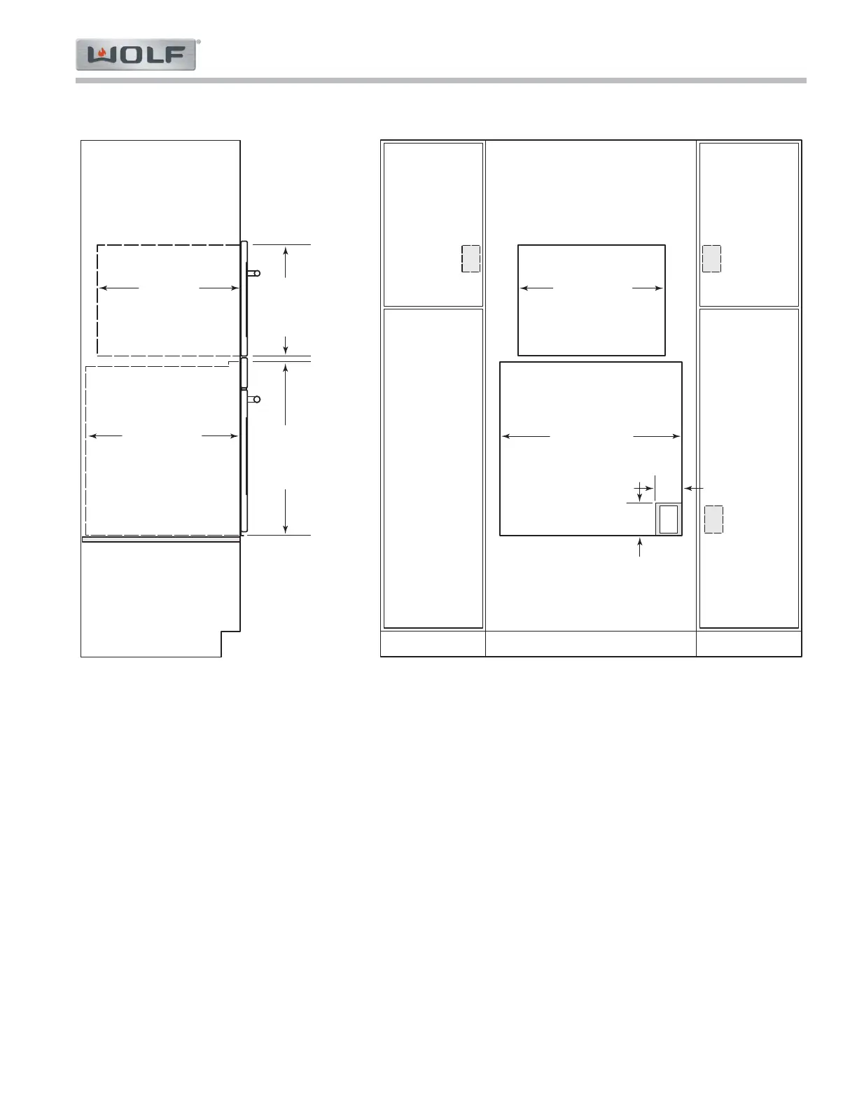
Standard Installation with E-Series Wall Oven
FRONT VIEWSIDE VIEW
28
1
/2" (724)
E SERIES OVEN
OPENING WIDTH
E
E
5"
(127)
4"
(102)
NOTES: Minimum base support for steam oven 100 lbs (45 kg) and E series oven 250 lbs (113 kg).
Electrical supply for steam oven must be located in adjacent cabinet within 3'
(.9 m) of opening.
Location of electrical supply within E series oven opening may require additional cabinet depth.
Dashed line represents profile of unit.
24" (610) min
OPENING DEPTH
27
3
/16"
(691)
OPENING
HEIGHT
5
/8"
(16) min
17
11
/16"
(449)
OPENING
HEIGHT
21
9
/16"
(548) min
OPENING DEPTH
22
1
/4" (565)
STEAM OVEN
OPENING WIDTH
EE

Other manuals for Wolf CSO24

Related product manuals