EasyManua.ls Logo

Wood-mizer MP180 E6S - Page 38

Wood-mizer MP180 E6S
48 pages
Print Icon
To Next Page IconTo Next Page
To Next Page IconTo Next Page
To Previous Page IconTo Previous Page
To Previous Page IconTo Previous Page
Loading...
MAINTENANCE
Drive Belt Tension Adjustment
4
4-4 doc052521 MAINTENANCE
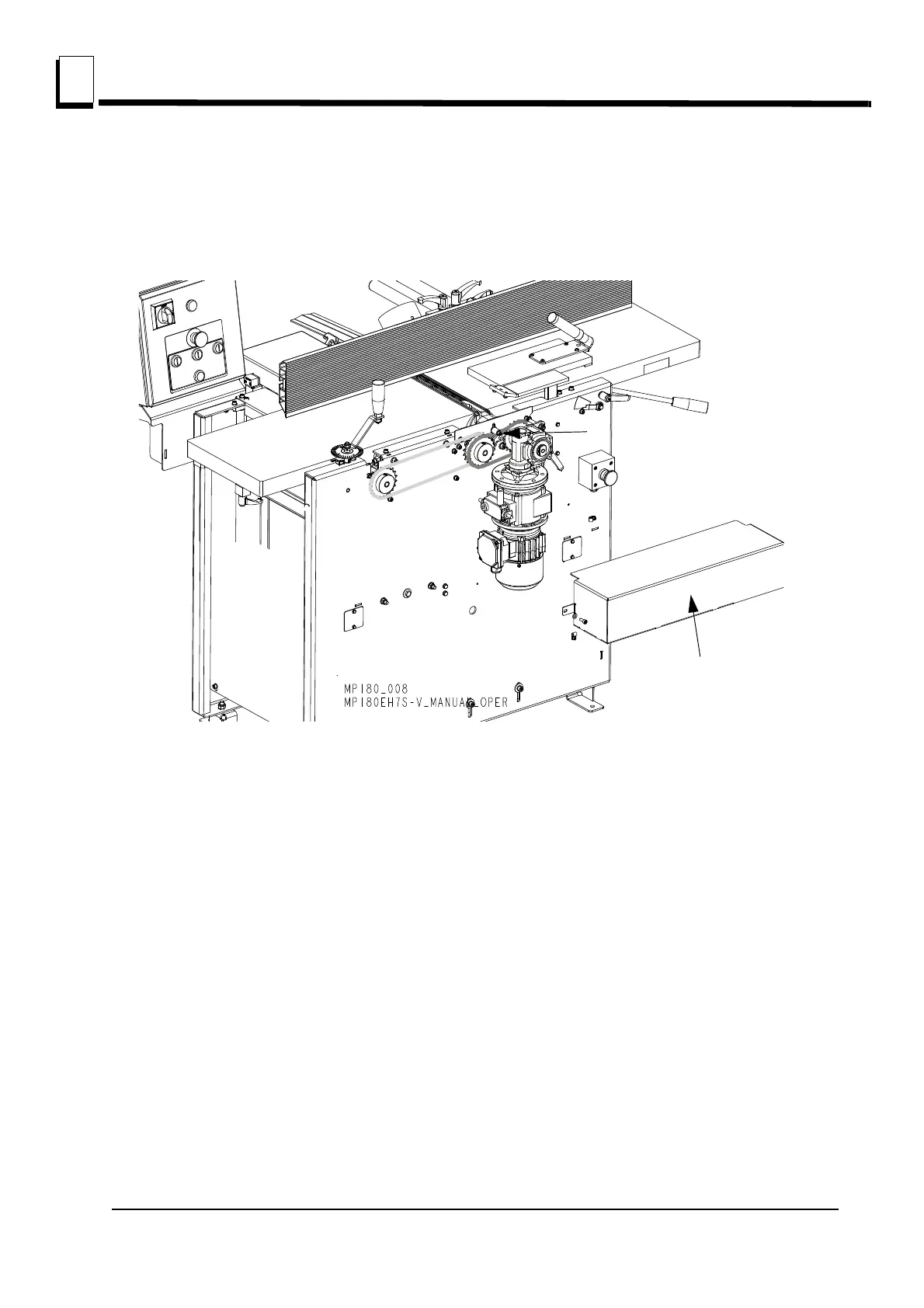
4.4.3 Roller drive chain tension adjustment
1. Unbolt and remove the roller drive chain cover (A).
2. Loosen the tensioner bolt (B). Move the tensioner up/down to tension the chain properly.
FIG. 4-3
A
B

Related product manuals