EasyManua.ls Logo

Wood-mizer MP180 E6S - Multi-Planer Specifications; Overall Dimensions

Wood-mizer MP180 E6S
48 pages
Print Icon
To Next Page IconTo Next Page
To Next Page IconTo Next Page
To Previous Page IconTo Previous Page
To Previous Page IconTo Previous Page
Loading...
MULTI-PLANER SPECIFICATIONS
Overall Dimensions
5
5-1 EGdoc052521 Specifications
SECTION 5 MULTI-PLANER SPECIFICATIONS
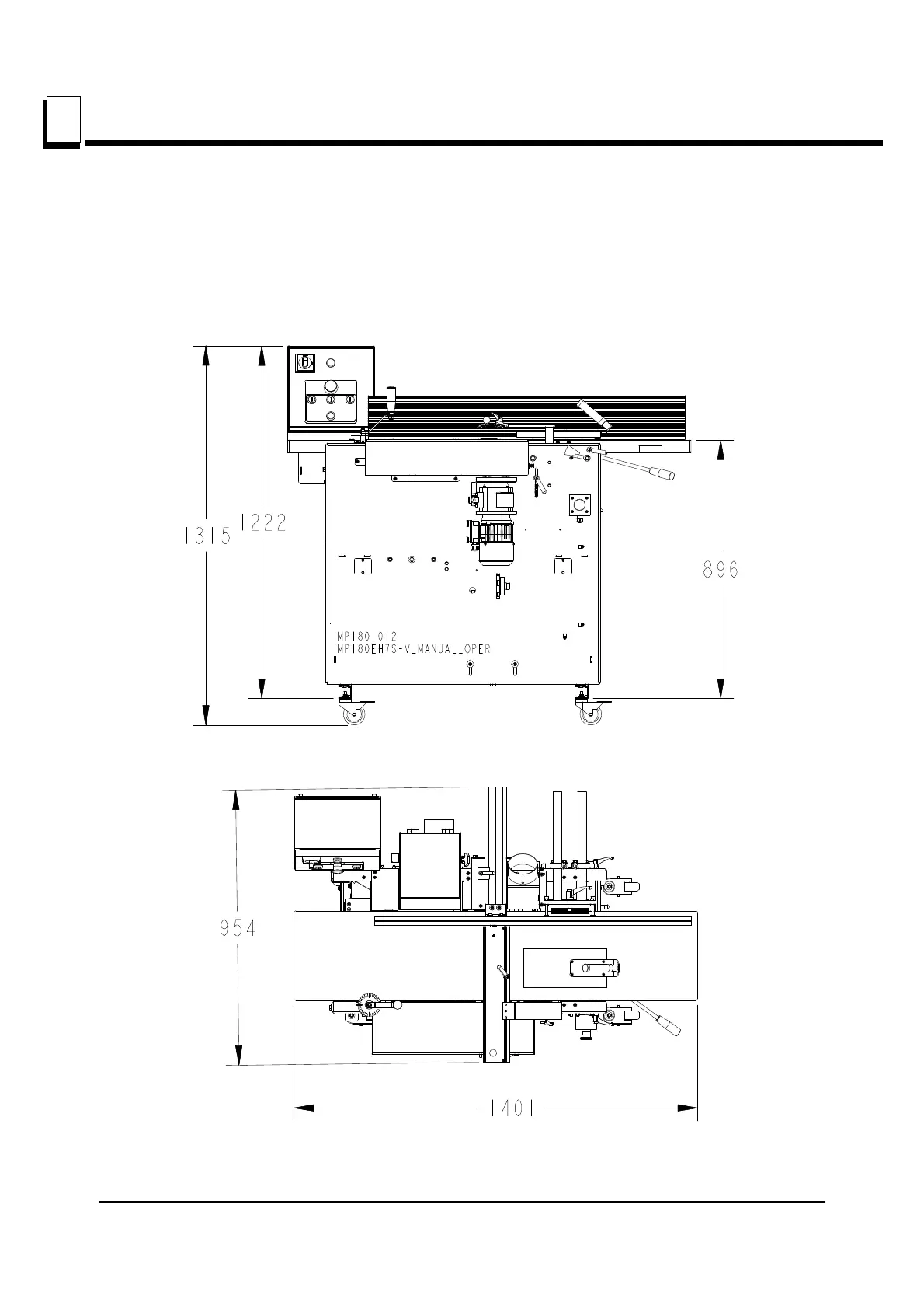
5.1 Overall Dimensions
See figure 5-1. The overall dimensions of the MP180 Multi-Planer are shown below (all dimensions are
in millimeters).
FIG. 5-1 MP180

Related product manuals