EasyManua.ls Logo

Worcester GREENSOURCE 6 kW - Wiring Diagram Greensource HWDU

Worcester GREENSOURCE 6 kW
46 pages
Print Icon
To Next Page IconTo Next Page
To Next Page IconTo Next Page
To Previous Page IconTo Previous Page
To Previous Page IconTo Previous Page
Loading...
23
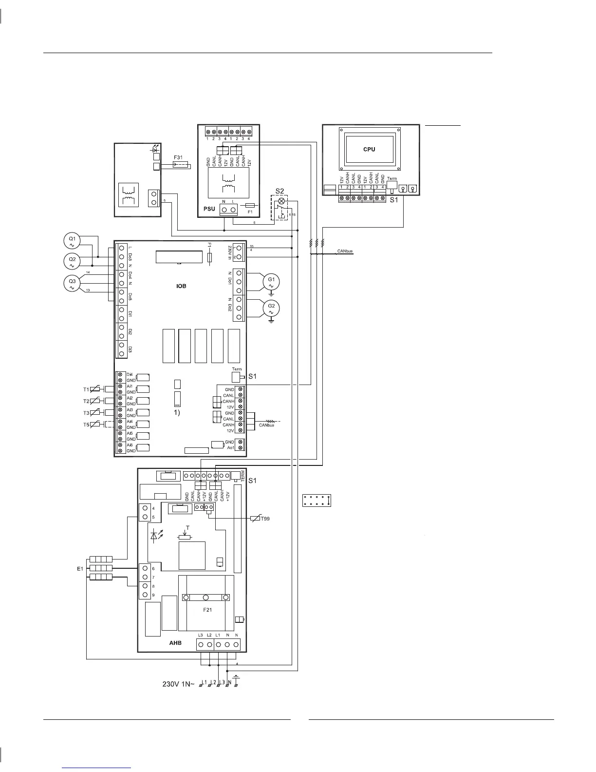
Wiring diagram Greensource HWDU
E1: Electric heater 4.5 kW
F1: Miniature circuit breaker
F21: Overheat protection elecrical heater
F31: Electronic anode in hot water heater
G1: External pump for heating system, for use with Primary
store
G2: Heat carrier pump
Q1: Three-way valve
Q2: Three-way valve
Q3: Mixing valve
S1: Termination switch
S2: Switch emergency operation
Sensors
T: Emergency thermostat
T1: Sensor ow heating system
T2: Outdoor sensor
T3: Hot water sensor
T5: Any room sensor, accessory
T99: Emergency operation sensor
To the heat
pump
1) Jumper
Display card
Wiring diagram
Open
Open
Close
S1 must be in "Term" position
on the fi rst and last circuit
board in the CANbus loop.

Table of Contents

Related product manuals