EasyManua.ls Logo

Worcester GREENSTAR 29 - Electrical Wiring Diagram; System Wiring Schematic

Worcester GREENSTAR 29
44 pages
Print Icon
To Next Page IconTo Next Page
To Next Page IconTo Next Page
To Previous Page IconTo Previous Page
To Previous Page IconTo Previous Page
Loading...
6 720 611 137 GB (03.02)
8
Details of the appliance
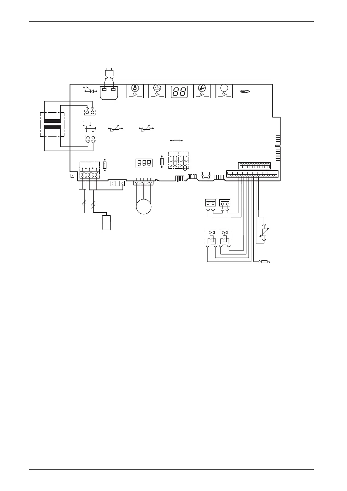
1.8 Electrical wiring diagram
Fig. 4
4.1 Ignition transformer
4.4 Y-S-module
6 Temperature limiter, heat exchanger
9 Flue gas temperature limiter
32 Flame sensing electrode
33 Ignition electrode
36 Temperature sensor in primary flow
52 Solenoid valve 1
52.1 Solenoid valve 2
56 Gas valve CE 427
61 Reset button
135 Master switch
136 Temperature control for boiler flow
151 Fuse, slow 2.5 A, AC 230 V
153 Transformer
161 Link
226 Fan
300 Code plug
302 Earth connection
310 Function control (Service only)
312 Fuse, slow T 1,6 A
313 Fuse, slow T 0,5 A
317 Digital display
328 Terminal block for AC 230 V Mains supply
363 Indicator lamp for burner
364 Indicator lamp for power supply
365 “Chimney sweep” button
366 Service button
367 No function
6
9
32
33
36
52.1
52
56
61
230 V
135
25 V
230V/AC
153
136
151
12
4
7
89
161
M
226
300
L
NLs
Ns
328
LR
302
310
312
313
317
363
364
365
366
ECO
367
4.1
6 720 611 137-03.1O
mains supply
r
r
bl
bl
bl
bl
o
o
o - orange bl - black r - red
4.4

Table of Contents

Related product manuals