EasyManua.ls Logo

Xinje DS2-22P3-AS - Page 29

Xinje DS2-22P3-AS
99 pages
To Next Page IconTo Next Page
To Next Page IconTo Next Page
To Previous Page IconTo Previous Page
To Previous Page IconTo Previous Page
Loading...
21
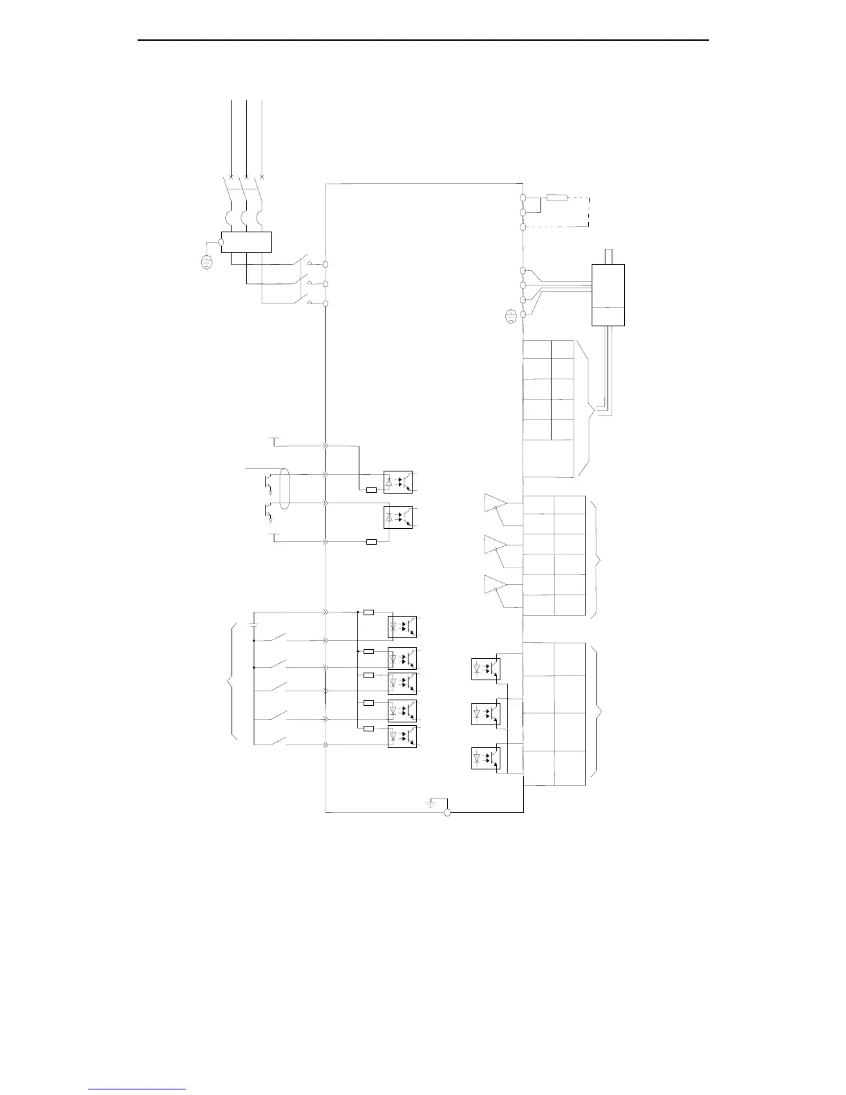
DS2-21P5-AS/AS6, DS2-22P3-AS/AS6, DS2-4□P-AS/AS6
Note:
P+, D connect internal regenerative resistor. P+ and C connect external regenerative resistor.
CN0-11
A0-
AO+
COM
Shield layer connect
0V at signal side
Be vacant at
Drive side
Vcc
CN0-1
2.2
K
Ω
W
V
DS2-21P5-AS/AS6,DS2-22P3-AS/AS6: 3-phase AC220V (50/60Hz)
DS2-4□P-AS/AS6: 3-phase AC380V (50/60Hz)
CN2
R
S-RDY
ALM
COIN
FIL
Self-define the
Terminals function
CN0-8
CN0-7
/S-ON
+24VIN
U
S
T
CN0-10
/N-OT
/ALM-RST
3.3KΩ
P+24V
CN0-3
Vcc
2.2
K
Ω
CN1-5
CN1-10
B0-
BO+
CN1-9
CN1-8
Z0-
ZO+
C
D
P+
Servo motor
Encoder
CN2-5
W+
CN2-4
CN2-3
U+
Z+
CN2-2
CN2-1
B+
A+
.
.
.
.
.
.
Differential encoder
feedback
Self-define
the terminals
function
D+24V
D-
P-
CN0-6
CN0-4
CN1-7
CN1-6
CN0-14
CN1-4
CN0-13
CN0-12
CN1-3
CN0-9
/P-OT
/SPD-A
Regenerative resistor

Table of Contents

Related product manuals