EasyManua.ls Logo

XtremepowerUS 75210 - Page 11

XtremepowerUS 75210
20 pages
Print Icon
To Next Page IconTo Next Page
To Next Page IconTo Next Page
To Previous Page IconTo Previous Page
To Previous Page IconTo Previous Page
Loading...
9
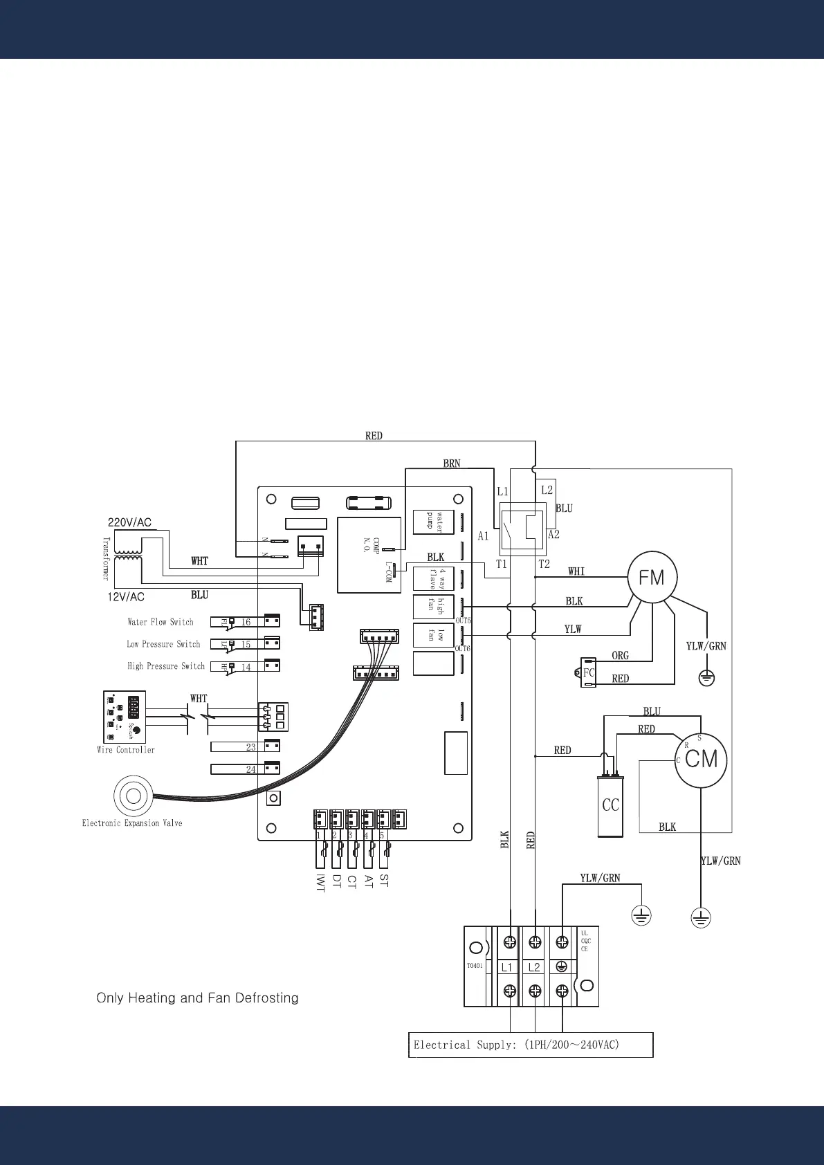
Wiring Diagram
INSTALLATION
Ground
Ground
Ground
Ground
ELECTRICAL CONNECTIONS (CONTINUED)
Bonding
Bond all metal and electrical pool system components together to equalize electrical poten-
tials. This includes the pool's framework, lighting, pump, filter (if metal), heater, chlorine
generator, and other relevant equipment.
For pools without existing bonding wires, install a copper rod (6-8 feet) into the ground near
the equipment and bond all components to it.
A check valve is required between the heater and chlorine distribution systems, which
should be placed downstream of the heater.
The filter should be upstream from the heater.
Install a bypass and shut-off valve for easy maintenance and to adjust water flow, especially
in systems with a pool pump over 3/4 HP.

Related product manuals