EasyManua.ls Logo

Yardistry YM11915 - Page 7

Yardistry YM11915
66 pages
Print Icon
To Next Page IconTo Next Page
To Next Page IconTo Next Page
To Previous Page IconTo Previous Page
To Previous Page IconTo Previous Page
Loading...
7 support@yardistrystructures.com
74
74
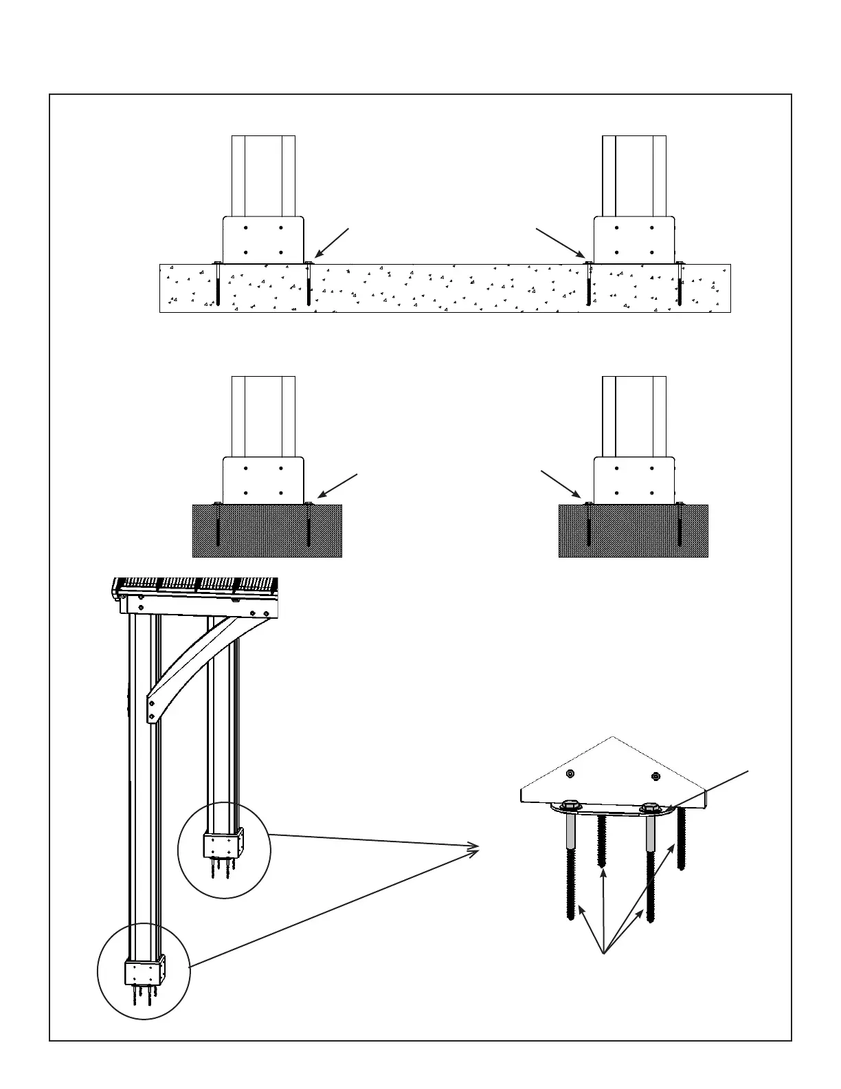
Permanent Installation Examples cont.
Anchoring Hardware (not included)
Post
Mount
Post Mounts have a 1/2” (12.7 mm)
diameter hole for anchoring hardware.
Concrete Patio [min. 11’ 10-3/8” x 15’ 10-3/8” (3.616 m x 4.836 m)] with 6” (15.24 cm) clearance on all sides
Wood Deck [min. 11’ 10-3/8” x 15’ 10-3/8” (3.616 m x 4.836 m)] with 6” (15.24 cm)clearance on all sides
Anchoring Hardware not included
Anchoring Hardware not included

Related product manuals