EasyManua.ls Logo

York AHU - Electric Heat Control Wiring Diagrams

York AHU
118 pages
To Next Page IconTo Next Page
To Next Page IconTo Next Page
To Previous Page IconTo Previous Page
To Previous Page IconTo Previous Page
Loading...
JOHNSON CONTROLS
105
SECTION 5 - WIRING DIAGRAMS
FORM 102.20-OM2
ISSUE DATE: 6/01/2015
5
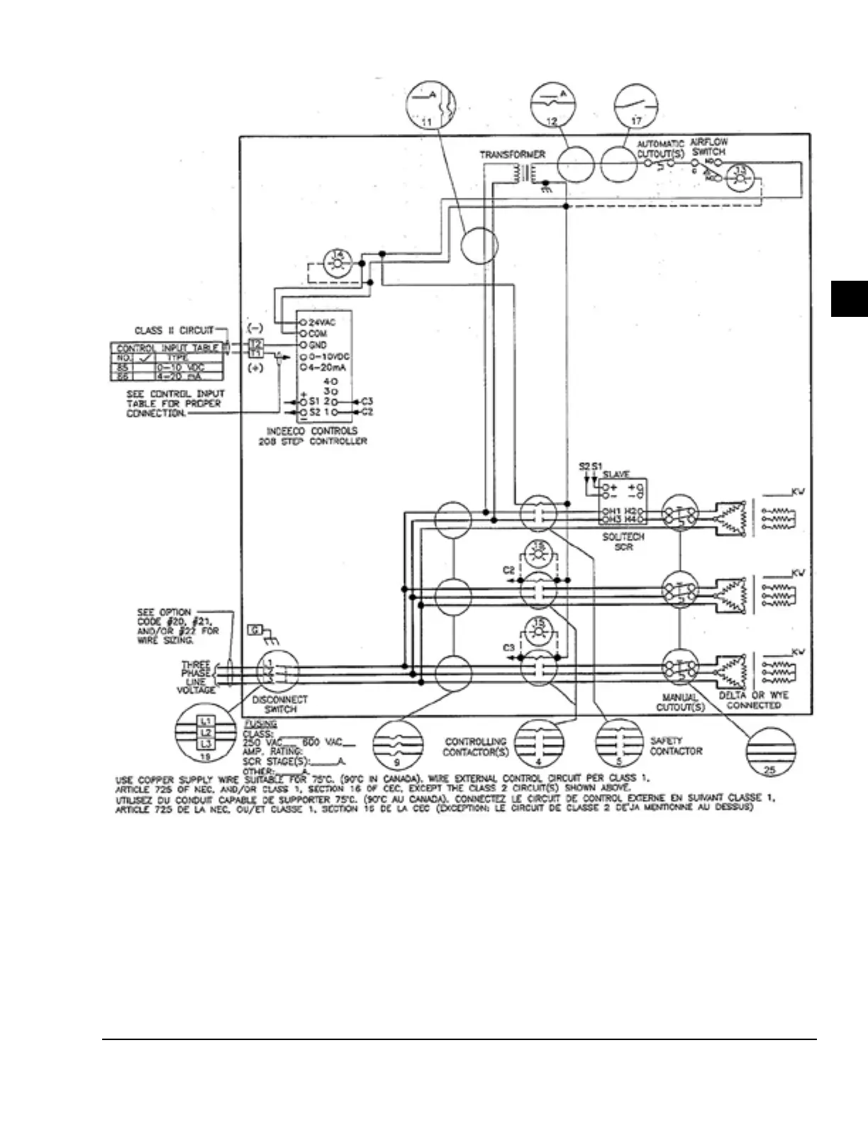
FIGURE 105 - TYPICAL WIRING DIAGRAM FOR ELECTRIC HEAT CONTROL TYPE VERMIER
LD16611

Table of Contents

Related product manuals