EasyManua.ls Logo

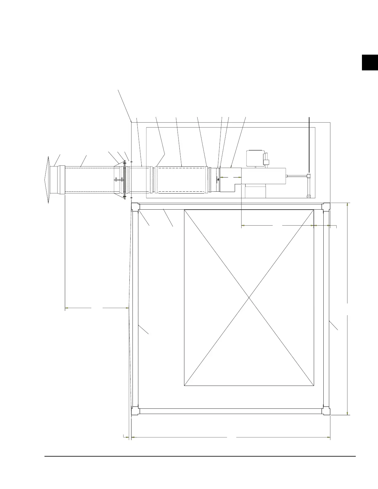
York AHU - FIGURE 35 - Example Solution XT Gas Furnace Fuel Venting System

York AHU
118 pages
Print Icon
To Next Page IconTo Next Page
To Next Page IconTo Next Page
To Previous Page IconTo Previous Page
To Previous Page IconTo Previous Page
Loading...
JOHNSON CONTROLS
43
SECTION 2 - START-UP AND OPERATION
FORM 102.20-OM2
ISSUE DATE: 6/01/2015
2
Installing Contractor MUST
install a drain trap. See Fig-
ure 28 on page 36 for trap
example.
LD13304
FIGURE 35 - EXAMPLE SOLUTION XT GAS FURNACE FUEL VENTING SYSTEM
RACEWAY
SIDE PANEL
FLOOR PANEL
ROOF PANEL
ROOF PEAK
PIPE CHASE
ID
FAN
TRANSITION
PIECE
6 in L SLIP JOINT
42 in L VSI PIPE
(NOT INSULATED)
STORM COLLAR
SUPPORT ASSEMBLY
FLUE CAP
44.40 TYP.
(36.00 MIN)
1.60
5.50
12"
EXT.
7.75
0.43 in CLEARANCE
CURB PIECE
END OF FLUE PIPE
IVSI PIPE (INSULATED PIPE)
CONTAINMENT
BAND SET and
GASKET, 1 in THK X 3 in W X LG
INSULATION FIBER
A
H
W
IVSI PIPE (INSULATED PIPE)
GAS FURNACE WITH CASING
HAT CHANNEL
CONTAINMENT BAND SET &
GASKET, 1 in THK X 3"W X LG,
INSULATION FIBER REQ. WHEN
IVSI IS IN 2 PIECES.

Table of Contents

Related product manuals