EasyManua.ls Logo

York AHU - Transformer Wiring Diagram

York AHU
118 pages
Print Icon
To Next Page IconTo Next Page
To Next Page IconTo Next Page
To Previous Page IconTo Previous Page
To Previous Page IconTo Previous Page
Loading...
JOHNSON CONTROLS
97
SECTION 5 - WIRING DIAGRAMS
FORM 102.20-OM2
ISSUE DATE: 6/01/2015
5
SWITCH
B
L
AB
BB
LOAD
GFI
A
S
SERVICE
LIGHT
A
A
A
N
A
LINE
X1
FU2
2L2
FU1
L2
1
ABD
6
C
AC
E
3
1
ABC
SEE TRANSFORMER
TRANSFORMER
FOR PROPER
CONNECTIONS
CONNECTION DIAGRAMS
AB
2KVA
T1
2KVA
2L3
X2
X2
E
FU1
L3
C
2
7
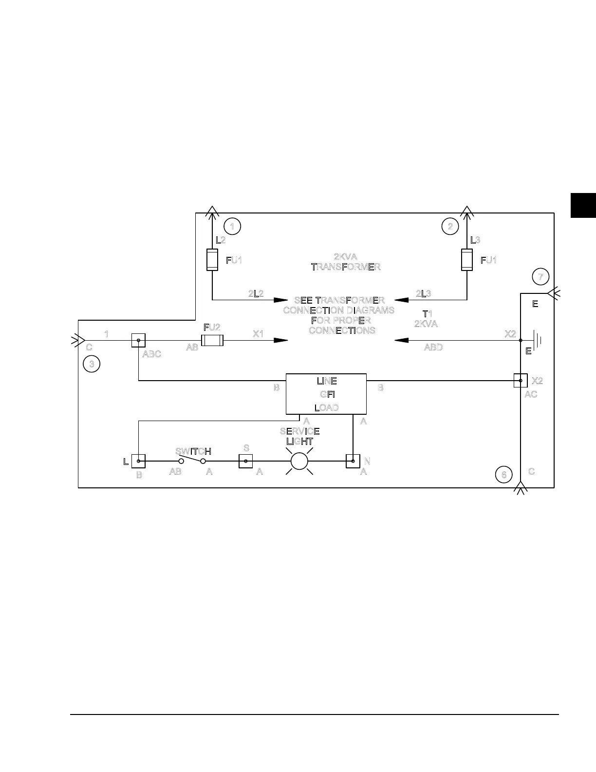
LD09692
FIGURE 99 - TRANSFORMER WIRING DIAGRAM

Table of Contents

Related product manuals