EasyManua.ls Logo

York YS - Page 31

York YS
56 pages
Print Icon
To Next Page IconTo Next Page
To Next Page IconTo Next Page
To Previous Page IconTo Previous Page
To Previous Page IconTo Previous Page
Loading...
31JOHNSON CONTROLS
FORM 160.80-EG1 (808)
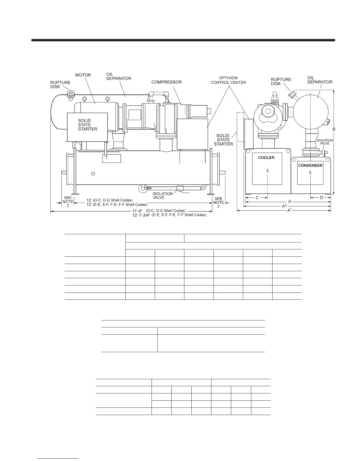
S4 - S5 COMPRESSOR
R-22 & R-134a UNITS
(50 and 60 Hz)
Refer to Tables 6 and 7 on pages 26 & 27 for valid compressor/shell/motor combinations.
1. All dimensions are approximate. Certied dimensions are available on request.
2. Determine overall unit length by adding water box depth from table below to tube sheet length:
3. Unit height includes steel mounting plates under tube sheets. To determine overall installed height,
add 7/8” for neoprene isolators (1” for optional spring isolators).
NOTES:
dIMEnsIon
s4 CoMPrEssor s4 and s5 CoMPrEssor
shELL CodEs (EVaPorator – CondEnsEr)
d-C d-d E-E E-F F-E F-F
a
6’–2” 6’–2” 6’–2” 6’–4-1/2” 6’–6-1/2” 6’–9”
a
1
6’–9-7/8” 6’–9-7/8” 6’–9-7/8” 7’–0-3/8” 7’–3-5/8” 7’–2-5/8”
a
2
6’–3-3/8” 6’–3-3/8”
B – oVEraLL hEIGht
3
7’–9-1/8” 7’–9-1/8” 7’–9-1/8” 8’–2-1/4” 8’–2-1/4” 8’–2-1/4”
C – CooLEr C/L
1’–7-3/4” 1’–7-3/4” 1’–7-3/4” 1’–7-3/4” 1’–10” 1’–10”
d – CondEnsEr C/L
1’–5-1/4” 1’–5-1/4” 1’–5-1/4” 1’–6-1/2” 1’–5-1/4” 1’–6-1/2”
rEFrIGErant rELIEF VaLVE ConnECtIons
VEssEL
SIZE
EVaPorator
CondEnsEr
oIL sEParator
1” FPT SINGLE
1” FPT DUAL
1” FPT DUAL & 2” NOM RUPTURE DISK
EVaPorator CodE CondEnsEr CodE
tYPE CoMPaCt WatEr BoX d E F d E F
RETURN BOX
WITH VICTAULIC CONN.
0’–5-1/2” 0’–5-1/2” 0’–7-3/4” 0’–5-1/4” 0’–5-1/4” 0’–7-5/8”
1’–1-7/8” 1’–1-7/8” 1’–3-1/8” 1’–1-7/8” 1’–1-7/8” 1’–3-1/8”
WITH FLANGED CONN. 1’–2-3/8” 1’–2-3/8” 1’–3-5/8” 1’–2-3/8” 1’–2-3/8” 1’–3-5/8”

Related product manuals