EasyManua.ls Logo

Yueming CMA0604-B-A - Electric Maintenance

Yueming CMA0604-B-A
57 pages
Print Icon
To Next Page IconTo Next Page
To Next Page IconTo Next Page
To Previous Page IconTo Previous Page
To Previous Page IconTo Previous Page
Loading...
43
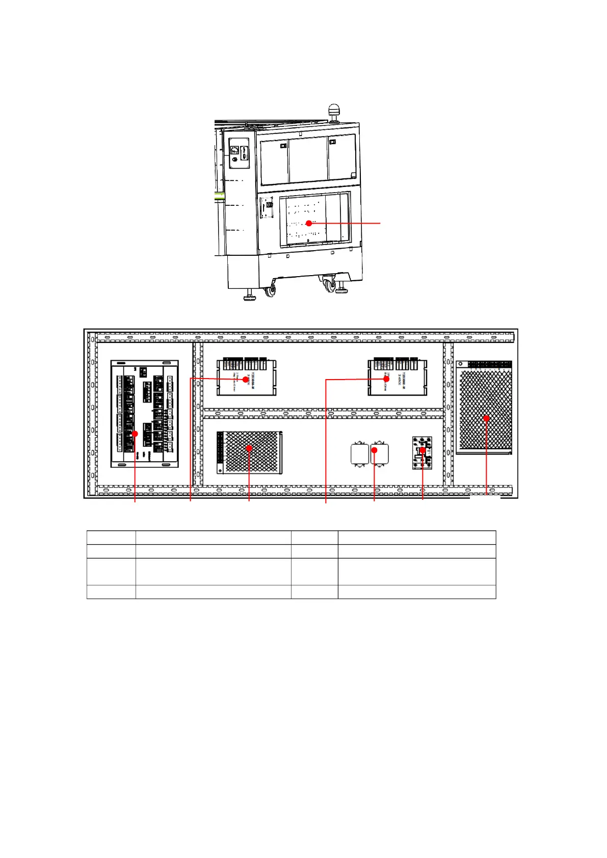
4.1.3 Electric maintenance
Figure 4-3 Electrical Cabinet Installation Position Diagram
Figure 4-4 Electrical Cabinet Layout Diagram
Mainly check the stability of routine supply voltage, and keep the electrical cabinet of the machine tool clean
and well-ventilated. Check the integrity and safety of the lines, check if the emergency stop button functions
normally, test the function of the limit switch and home switch of each axis, and check if the sensor and the drive
work normally. Check if the state of button switches, indicators and warning lights is normal, diagnose and
eliminate the failures of the servo system.
5# board
Filter
X direction driver
AC contactor
24V switching power supply
36V or 48V switching power
supply
Y direction driver
Electrical cabinet installation
location

Table of Contents

Related product manuals