EasyManua.ls Logo

Zelmer 522.60 - Moнтаж

Zelmer 522.60
Print Icon
To Next Page IconTo Next Page
To Next Page IconTo Next Page
To Previous Page IconTo Previous Page
To Previous Page IconTo Previous Page
Loading...
40
MOНТАЖ
Для установки кухонный вытяжки следует выпол-
нить следующее:
1. Повесить корпус вытяжки C.
2. Подсоединить вытяжку к питающей сети.
3. Установить в режим рециркуляции или отвода возду-
ха наружу.
4. Установить телескопическую трубу (нижнюю часть В
и верхнюю часть А).
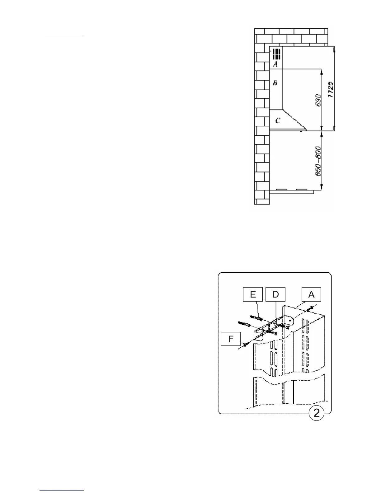
Moнтаж кухонной вытяжки
a) Разметьте на стене вертикальную линию, обозначаю-
щую центр кухонной плиты.
b) Снимите алюминиевый жироулавливающий фильтр.
c) Приложите корпус вытяжки к стене, выравнивая его
отмеченный центр по вертикальной линии на стене
и соблюдая минимальное расстояние 650 мм от по-
верхности плиты.
Внимание: Убедитесь, что корпус вытяжки выров-
нен по горизонтали.
d) Разметьте на стене места под монтажные отверстия.
e) Просверлите размеченные отверстия с помощью сверла, диаметр которого со-
ответствует приложенным распорным колышкам. Забейте колышки, а затем при-
винтите корпус кухонной вытяжки к стене.
f) Установите алюминиевый жироулавливающий фильтр на место.
Mонтаж телескопической трубы:
Для установки трубы (маскировочного экрана)
вытяжки, необходимо:
Вставить нижнюю часть B и верхнюю часть
A трубы (рис.1) в корпус вытяжки, раздви-
нуть на необходимую высоту и отметить
высоту на стене.
Снять верхнюю часть трубы A и на расст
оянии 65 мм от обозначенной максималь-
ной высоты трубы приложить симметрично
по центру крепежный профиль трубы D,
разметить на стене места под монтажные
отверстия, просверлить отверстия, вбить
колышки E и привинтить крепежный про-
филь D.
На нижнюю часть телескопической трубы
B надеть верхнюю часть А и раздвинуть
трубу на определенную ранее высоту.
При помощи прилагающихся в комплекте болтов F привинтить верхнюю часть
трубы A к крепежному профилю D, а нижнюю часть B к корпусу вытяжки.

Table of Contents

Related product manuals