EasyManua.ls Logo

Zelmer 522.60 - Montaż

Zelmer 522.60
Print Icon
To Next Page IconTo Next Page
To Next Page IconTo Next Page
To Previous Page IconTo Previous Page
To Previous Page IconTo Previous Page
Loading...
5
MONT
W celu zamontowania okapu należy wykonać następu-
jące czynności:
1. Zawiesić obudowę okapu C.
2. Podłączyć okap do sieci elektrycznej.
3. Ustawić okap na pochłaniacz lub wyciąganie zapachów.
4. Zamontować teleskopową kolumnę komina B i A.
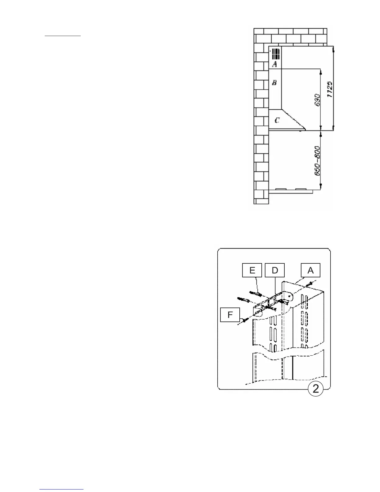
Montaż okapu
a) Zaznaczyć na ścianie pionową linię oznaczającą środek
płyty kuchennej.
b) Zdemontować aluminiowy ltr tłuszczowy.
c) Przyłożyć obudowę okapu do ściany jego zaznaczonym
środkiem na pionowej, środkowej linii, zachowując mini-
malną odległość 650 mm od powierzchni kuchni.
Uwaga: Należy upewnić się, czy obudowa jest wypozio-
mowana.
d) Zaznaczyć na ścianie rozstaw otworów montażowych.
e) Wywiercić zaznaczone na ścianie otwory używając wier-
tła o średnicy odpowiadającej załączonym kołkom rozpo-
rowym, wbić kołki a następnie przykręcić do ściany obudowę okapu.
f) Zamontować ltr aluminiowy przeciw tłuszczowy.
Montaż teleskopowej kolumny komina
Aby zamontować komin (maskownicę) okapu,
należy:
Nałożyć dolny B i górny A komin (rys.1) na
obudowę okapu, rozsunąć maskownice na
żądaną wysokość i zaznaczyć ją na ścianie.
Zdjąć komin górny A i w odległości 65 mm
od zaznaczonego punktu maksymalnego
komina, przyłożyć prol mocujący komin D
symetrycznie do linii środkowej, zaznaczyć
na ścianie otwory, wywiercić je, wbić kołki E
i przykręcić prol mocujący D.
Na komin dolny B założyć komin górny A,
rozsunąć do ustalonej wcześniej wysokości.
Przy pomocy załączonych wkrętów F przykrę-
cić górny komin A do prolu montażowego D
oraz dolny komin B do obudowy okapu.
Podłączenie do sieci elektrycznej i kontrola działania
Po podłączeniu wtyczki do gniazda sieci elektrycznej (zgodnie z określonymi wcześniej
wymaganiami) należy sprawdzić czy działa oświetlenie okapu oraz czy prawidłowo pra-
cuje jego silnik.
Po zainstalowaniu okapu gniazdo powinno być dostępne w celu odłączenia wtyczki od
zasilania.

Table of Contents

Related product manuals