EasyManua.ls Logo

ZENEC Z-E2050 - Front Panel Controls

ZENEC Z-E2050
7 pages
Print Icon
To Previous Page IconTo Previous Page
To Previous Page IconTo Previous Page
Loading...
Technical modifications excepted. No liability granted for printing errors.
© Copyright 2018 · RevB / copy deadline: Q1-2018 · English
ZENEC · Bohrturmweg 1 · CH-5330 Bad Zurzach · Schweiz/Switzerland · Mail: support@zenec.com · www.zenec.com
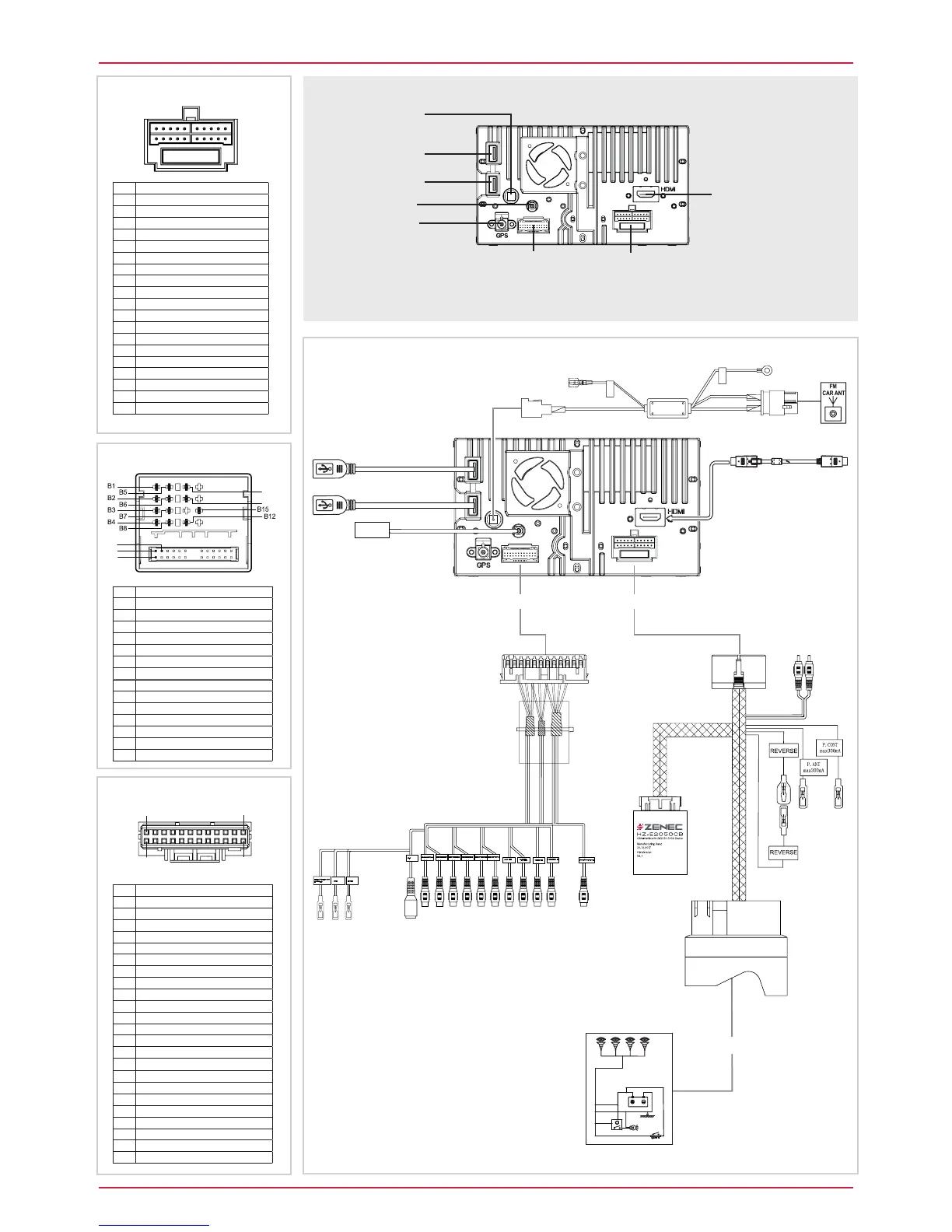
CONNECTION DIAGRAM
C1 Rear Monitor Out
C2 N.A.
C3 Camera IN
C4 Video IN
C5 AUX IN L
C6 AUX IN R
C7 Line Out Rear L
C8 Line Out Rear R
C9 Line Out Front L
C10 Line Out Front R
C11 Line Out Sub Woofer
C12 Line Out Sub Woofer
C13 MIC
C14 N.A.
C15 IR/IN
C16 GND
C17 N.A.
C18 Camera +12V (max 300mA)
C19 N.A.
C20 N.A.
C21 N.A.
C22 N.A.
C23 N.A.
C24 N.A.
B1 Speaker Rear Right (+)
B2 Speaker Front Right (+)
B3 Speaker Front Left (+)
B4 Speaker Rear Left (+)
B5 Speaker Rear Right (-)
B6 Speaker Front Right (-)
B7 Speaker Front Left (-)
B8 Speaker Rear Left (-)
B9 CAN High
B10 CAN Low
B12 GND
B15 B+
B17 AUX-L
B18 AUX-GND
B29 AUX-R
B
QUADLOCK II
CONNECTOR
B9
B10
B18
B17
B29
A
20 PIN CONNECTOR
(DEVICE BACKSIDE)
A1
A11
A10
A20
A11 N.A.
A12 P. ANT +12V** (Antenna)
A13 P. CNTR +12V** (Amplifier)
A14 Parking
A15 KL 31 / Power GND
A16 KL 30 / Permanent +12V PWR
A17 Speaker Rear Right (-)
A18 Speaker Rear Right (+)
A19 Speaker Front Right (-)
A20 Speaker Front Right (+)
A1 N.A.
A2 Reverse
A3 KL 15 / Switched +12V PWR
A4 Illumination
A5 Analog Wheel KEY 2
A6 Analog Wheel KEY 1
A7 Speaker Rear Left (-)
A8
Speaker Rear Left (+)
A9
Speaker Front Left (-)
A10
Speaker Front Left (+)
**
300mA max current
C
C24 C2
C23
C1
24 PIN CONNECTOR
AC
DAB
USB 1
USB 2
HDMI
B
CAN Box
Rear Monitor Out
Camera IN
P.CONT (max 300mA)
P.ANT (max 300mA)
Video IN
Aux IN L
Aux IN R
Line Out Rear L
Line Out Rear R
Line Out Front L
Line Out Front R
Line Out Woofer
Line Out Woofer
MIC
IR / IN
GND
Camera +12V (max 300mA)
P. AN T
GND
GND
P. ANT
Aux Out L
Aux Out R
Z-E2050
DAB
HDMI
USB 2
USB1:
Apple MFI
USB Media Playback, -Smartlink Direct, -Software Updates
USB2:
Apple MFI
USB Media Playback, -Smartlink Direct, -Software Updates
A
GPS
UKW/
FM
USB 1
C

Other manuals for ZENEC Z-E2050

Related product manuals