EasyManua.ls Logo

AAON MHGRVX-A2 - Overview; MHGRVX-A2 General Information; Figure 1: MHGRVX-A2 Dimensions

AAON MHGRVX-A2
35 pages
Print Icon
To Next Page IconTo Next Page
To Next Page IconTo Next Page
To Previous Page IconTo Previous Page
To Previous Page IconTo Previous Page
Loading...
5MHGRVX-A2 Module Technical Guide
OVERVIEW
MHGRVX-A2 General Information
Overview
The MHGRVX-A2 is designed to control a Modulating Hot Gas
Reheat Valve to maintain a desired Supply Air Temperature Setpoint.
The MHGRVX-A2 can be used as a stand-alone module or can be
used in conjunction with an AAON unit controller with E-BUS
capability.
In addition, up to seven Reheat Expansion Modules can be connected
to the MHGRVX-A2 and to each other for additional reheat valve
control.
The MHGRVX-A2 connects to an AAON unit controller or
expansion module via an E-BUS cable.
CAUTION: This module only works as intended with the
Sanhua EBV05H reheat valve. See Appendix
B, page 27, for MHGRVX series compatibility.
NOTE: This module does not support I
2
C connections.
Features
The MHGRVX-A2 provides the following:
Can be operated as a stand-alone module or communicating
with AAON unit controllers.
Provides for Supply Air Temperature Setpoint reset when
required.
Second stage reheat capability when using two hot gas
reheat valves.
Control of the reheat solenoid valve to provide coil ushing
for positive refrigerant oil return.
Can provide further reheat control using up to seven Reheat
Expansion Modules.
Contains a 2 x 8 LCD character display and four buttons
that allow for status display, setpoint changes, and
conguration changes
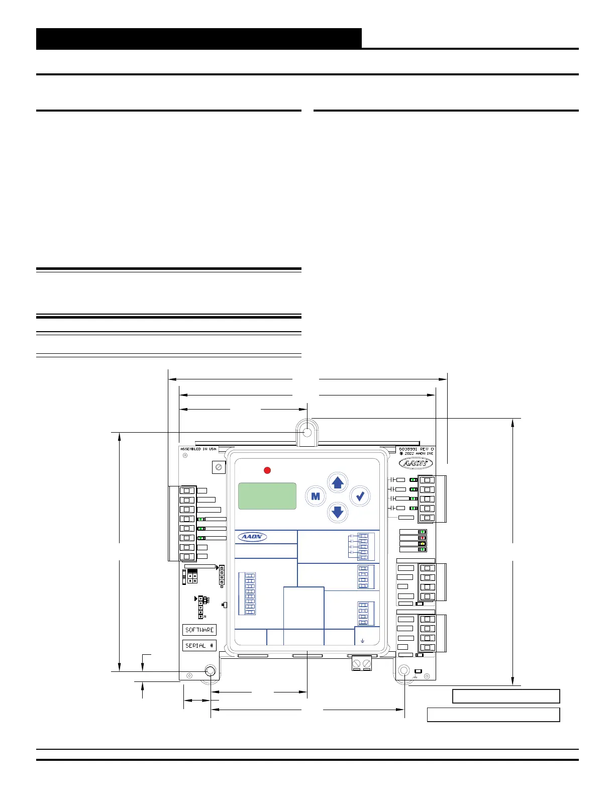
5.73
2.62
2.04
4.09
0.57
0.21
5.04
5.63
5.24
D8
R2
J3
MODGASx
MODGAS
NORMAL
R1
SAT OPTIONS
SAT
GND
COOL OVRD
HEAT OVRD
REHEAT EN
RESET IN
AUX IN
GND
TB2
LC
FAN
COMP
VALVE
AUX
COMMON
TB1
STATUS
ALARM
COMM
POWER
CONDENSOR DRIVE
BLACK
WHITE
RED
GREEN
OPENING
TB3
REHEAT DRIVE
BLACK
WHITE
GREEN
RED
OPENING
TB4
C23
.01uF
NOTE: Depth is 1.50 inches.
NOTE: All dimensions are in inches.
ALARM
UP
DOWN
ENTERMENU
FAN
COMPRESSOR
REHEAT VALVE
AUX
COMMON
OUTPUTS
RELAY
CONDENSER
DRIVE TERMINALS
BLACK
WHITE
RED
GREEN
GND
RHT EN (BI)
AUX INPUT (AI)
RESET SIG (AI)
HEAT OVR (BI)
COOL OVR (BI)
INPUTTERMINALS(TYPE)
GND
SAT (AI)
@ 24 VAC
CONTACT
RATING IS
1 AMP MAX
MHGRVX-A2
AAON P/N:ASM06926
www.aaon.com
LABEL P/N:
G112600
E-BUS
CONNECT
CONNECT
E-BUS
+24VAC
GND
REHEAT VALVE
DRIVE TERMINALS
BLACK
WHITE
GREEN
RED
Figure 1: MHGRVX-A2 Dimensions

Table of Contents

Other manuals for AAON MHGRVX-A2

Related product manuals