EasyManua.ls Logo

ABB ACH550 - Page 15

ABB ACH550
58 pages
Print Icon
To Next Page IconTo Next Page
To Next Page IconTo Next Page
To Previous Page IconTo Previous Page
To Previous Page IconTo Previous Page
Loading...
E-Bypass Configurations for ACH550 Drives 13
Installation
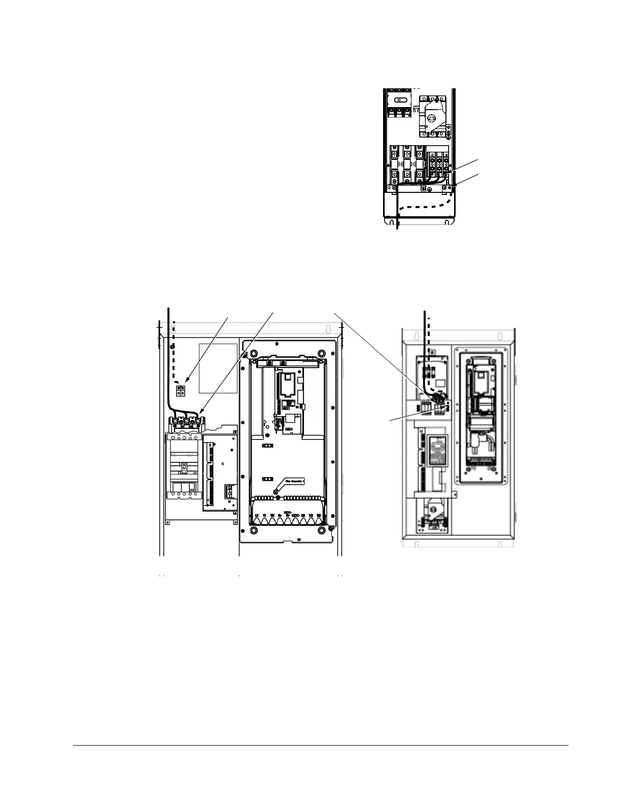
Install the Motor Wiring (Supplement to ACH550-UH Users Manual)
Motor Connections – Vertical E-Bypass
Configurations
Connect the motor cables to the terminals at
the bottom of the bypass section as shown in
the figure below. Also see "Connection
Diagrams – Vertical E-Bypass" on page 9.
Connect the motor grounding conductor to
the ground lug near the motor cable terminal
block connection point.
Motor Connections – Standard E-Bypass
Configurations
Connect the motor cables to the output terminal block as shown in the figure below.
Also see "Connection Diagrams – Standard E-Bypass (R7/R8, Floor Mounted)" on
page 11 for R7 or R8. The motor grounding conductor can be connected to the
ground lug near the terminal block.
Install the Control Wiring (Supplement to ACH550-UH User’s Manual)
Connect control wiring to terminal block X1 on the ACH550 control board and to
terminal block X2 on the E-Bypass control board. For more information on these
connections, refer to the following:
X1 terminal block location and terminal data are defined in the ACH550-UH
Users Manual.
X2 terminal block location is illustrated in the figures starting with "Connection
Diagrams – Vertical E-Bypass" on page 9.
BP0044
Motor Cables
Gnd
BP0041
BP0043
Standard Configuration (R1…R4)
Motor Cables
Gnd
Standard Configuration (R5, R6)
Gnd

Other manuals for ABB ACH550

Related product manuals