EasyManua.ls Logo

ABB ESAB W82 - INSTALLATION OF HARDWARE; Regarding U82; Installing W82; Connections and control devices

ABB ESAB W82
34 pages
Print Icon
To Next Page IconTo Next Page
To Next Page IconTo Next Page
To Previous Page IconTo Previous Page
To Previous Page IconTo Previous Page
Loading...
- 16 -
cr09_02
INSTALLATION OF HARDWARE
The installation chapter will describe how to connect the different components. The
ESAB integrated software in the robot controller should be installed by ABB before
delivery to the site.
Regarding U8
2
The U8
2
is not supported together with the W8
2
integrated version. The ABB Teach
Pendant is used for communicating with the power source.
Installing W8
2
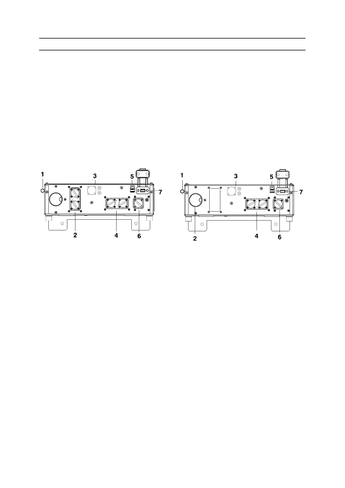
Connections and control devices
W8
2
Integrated W8
2
Anybus
1. Indicating lamp
Orange indicating lamp - Overheating
2. Fieldbus
Connection for communication with robot system
3. Measure
Connection for measurement cable for arc voltage feedback and emergency
stop signal, measurement kit
4. Internal CAN
Connections for communication with ESAB wire feed unit and control panel
5. LAN
Connection to network, Ethernet
6. CAN to welding power source
Connection for communication with welding power source
7. USB
USB memory connection

Related product manuals