EasyManua.ls Logo

ABB REL 356

ABB REL 356
237 pages
To Next Page IconTo Next Page
To Next Page IconTo Next Page
To Previous Page IconTo Previous Page
To Previous Page IconTo Previous Page
Loading...
ABB REL 356 Current Differential Protection
2-23
Installation, Operation and Maintenance
K H N L BA
RS232
POWER
SUPPLY
BACKUP
POWER
SUPPLY
OPTION
L N
TB6-11 TB6-13
1FT-14
TB4-5
2FT-14
TB2-1 TB2-4 TB5-1
(+)
TB5-11
(+)
TB5-13
(+)
FAIL
AL
TRIP
BKR1
TRIP
BKR2
TB6-12 TB6-14
1FT-14
TB4-6
TB1-2 TB1-4
M K
2FT-14
VDC
BFI1 BFI2
CC CC CC
TB2-2 TB2-4
(-)
TB5-2
(-)
TB5-12
(-)
TB5-14
TB4-11 TB4-12 TB4-13 TB4-14
AUDIO
TRANSMIT
AUDIO
RECIEVE
TB4-10
TO REMOTE SUBSTATION
VIA AUDIOTONE
DCI
INTERFACE
XMIT RCV
214 316
RS422 DIRECT DIGITAL
OR FIBER OPTIC
COMMUNICATION
NEG
POS
BFI/RECL
ENABLE
2FT-14
BFI
CONTROL
TB1-14 TB1-13
ABB
03-23-97
SW
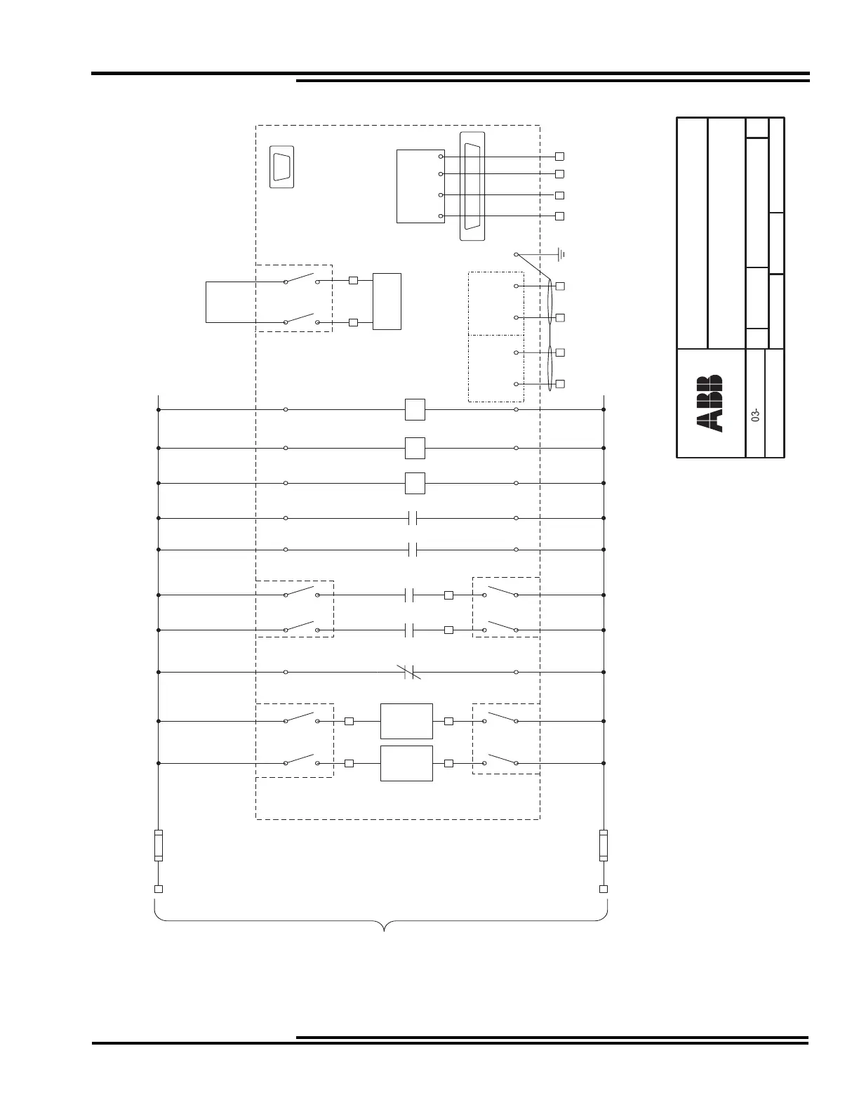
Current differential system using REL356
ABB Automation Inc.
Substation Automation and Protection Division
Allentown, PA
SIZE FSCM NO DWG NO REV
2097D40
SH
2 OF 3

Table of Contents

Other manuals for ABB REL 356

Related product manuals