EasyManua.ls Logo

ABB SACE PR021/K - 5.17. Wiring Diagrams; 5.17.1. PR112-PR113-PR121-PR122-PR123-PR331-PR332-PR333 + PR021;K

ABB SACE PR021/K
52 pages
Print Icon
To Next Page IconTo Next Page
To Next Page IconTo Next Page
To Previous Page IconTo Previous Page
To Previous Page IconTo Previous Page
Loading...
L3016
1SDH000559R0002
46/52
ABB SACE
SACE PR021/K
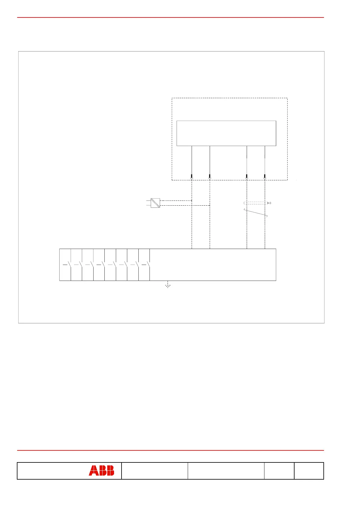
5.17. Wiring diagrams
5.17.1. PR112-PR113-PR121-PR122-PR123-PR331-PR332-PR333 + PR021/K
24V
K51
4
A13
K51
1
1412 16
K51
2
K51
3
1311 1 5
2218 20
K51
5
K51
6
24 26
K51K51
7 8
2117 19 23 25
-
+
10
12
PR021/K
78
PR113/P
EmaxQ
PR113/PD
PR112/PD
PR112/P
PR123/P
PR122/P
PR121/P
K51
K1
K2
W3
W4
PR121/P PR333
PR122/P PR112/P
PR123/P PR112/PD
PR331 PR113/P
PR332 PR113/PD

Related product manuals