EasyManua.ls Logo

ABB SACE PR021/K - 5.17.4. PR212;P + PR212;D-L or PR212;D-M + PR021;K

ABB SACE PR021/K
52 pages
Print Icon
To Next Page IconTo Next Page
To Next Page IconTo Next Page
To Previous Page IconTo Previous Page
To Previous Page IconTo Previous Page
Loading...
49/52
L3016
1SDH000559R0002
ABB SACE
SACE PR021/K
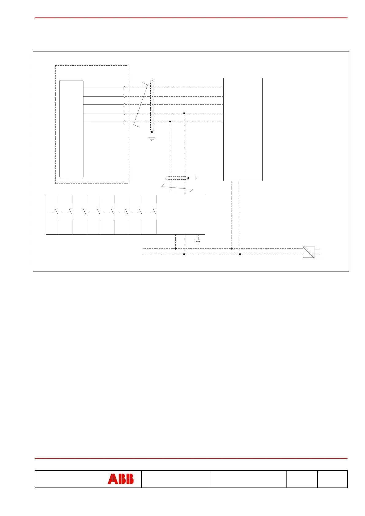
5.17.4. PR212/P + PR212/D-L or PR212/D-M + PR021/K
Q
810 9
K51
5 4
PR212/P
PR212/D-M
A11
PR212/D-L
78
21
PR021/K
2523
87
K51
26
2119
6
K51
17
5
K51
K51
15
4
K51
13
2
K51
3
K51
16
11
1
K51
A13
181412 20 22 24
10
7
6
24V
+
-
QQ Isomax
X3 2
X3 3
X4 1
X4 2
X4 3

Related product manuals