EasyManua.ls Logo

ABB SpiritIT Flow-X - Flow-X;P Panel Version 2 Mounting Bracket

ABB SpiritIT Flow-X
58 pages
To Next Page IconTo Next Page
To Next Page IconTo Next Page
To Previous Page IconTo Previous Page
To Previous Page IconTo Previous Page
Loading...
S P I R I T
IT
F L O W- X INS T R U C T I O N M A N U A L | I M/ F L O W X - EN 43
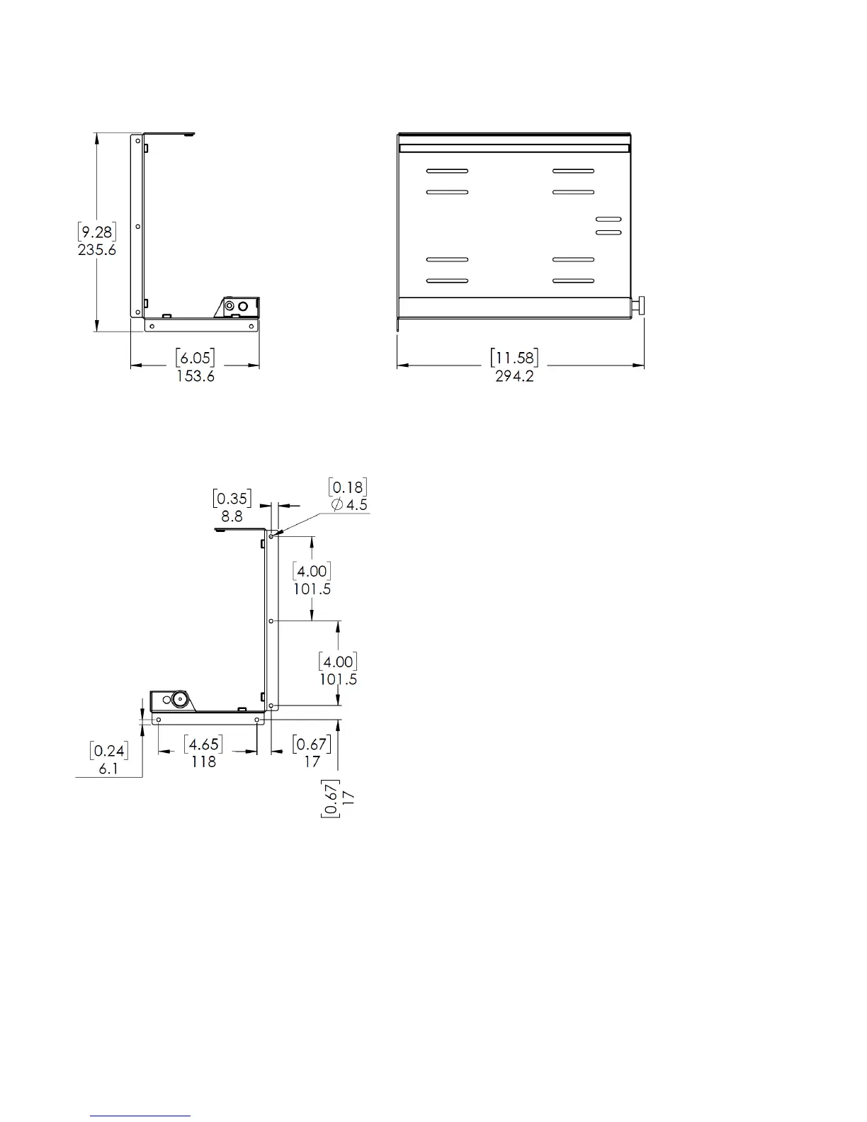
Flow-X/P Panel version 2 mounting bracket
Figure 10-10 Flow-X/P version 2 bracket front view
dimensions
Figure 10-11 Flow-X/P version 2 bracket right side view
dimensions
Figure 10-12 Flow-X/P version 2 bracket rear view dimensions

Table of Contents

Related product manuals