EasyManua.ls Logo

ABB SpiritIT Flow-X - Flow-X;C Installation Guides

ABB SpiritIT Flow-X
58 pages
To Next Page IconTo Next Page
To Next Page IconTo Next Page
To Previous Page IconTo Previous Page
To Previous Page IconTo Previous Page
Loading...
S P I R I T
IT
F L O W- X INS T R U C T I O N M A N U A L | I M/ F L O W X - EN 45
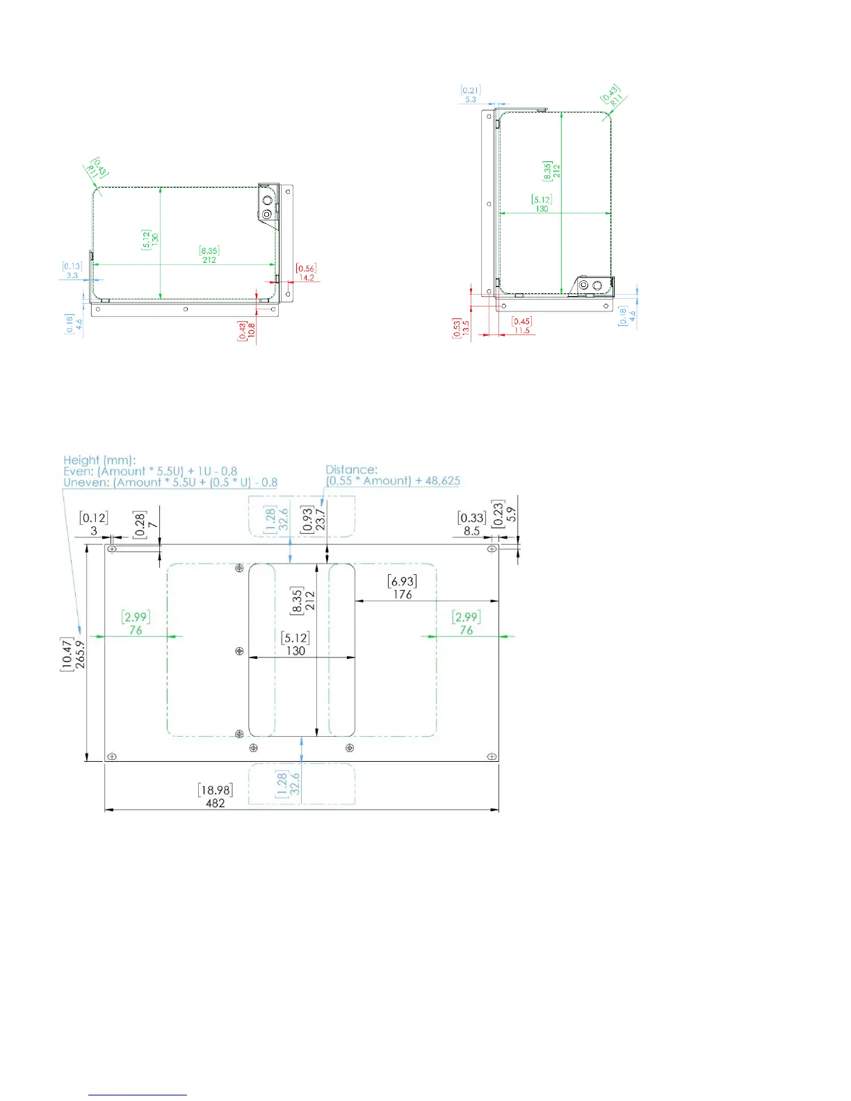
Figure 10-17 Flow-X/C position & cut out (vertical & horizontal position)
Flow-X/C installation guides
Figure 10-18 Blanking plate 19 inch installation, Front, vertical Flow-X/C

Table of Contents

Related product manuals